PROJEKT NA MÍRU
Jednopodlažní rodinný dům s obytným podkrovím, vikýři a bioklimatickou pergolou
Moderní venkovské bydlení v Žilině u Nového Jičína
| 🏡 Dispozice | 4+kk |
|---|---|
| 🎯 Energetický štítek | B |
| 📐 Užitná plocha | 165,7 m² |
| 📏 Zastavěná plocha | 108 m² |
| 🛠️ Projekt | 2024 |
| 📍 Lokalita | Žilina u NJ |
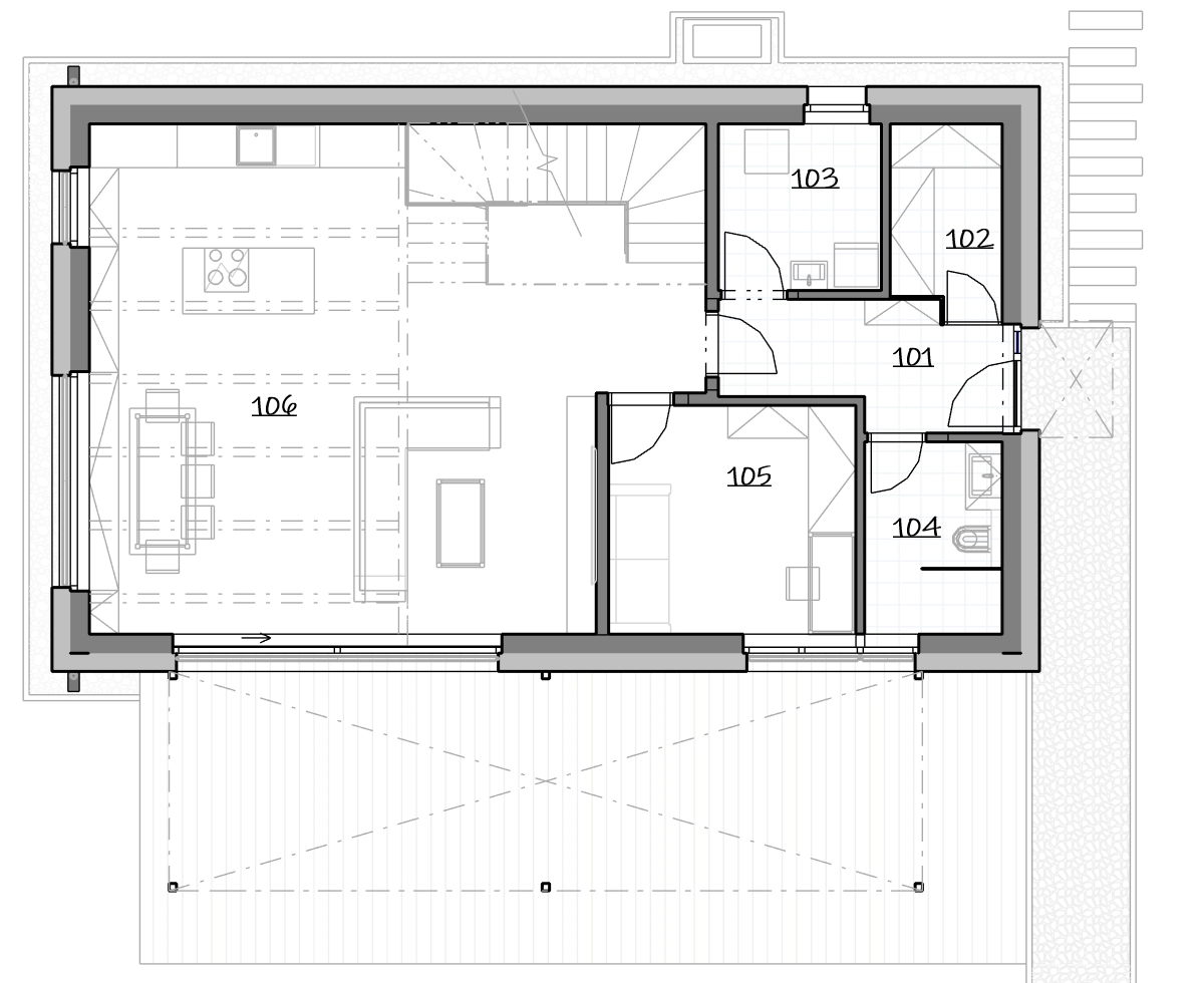
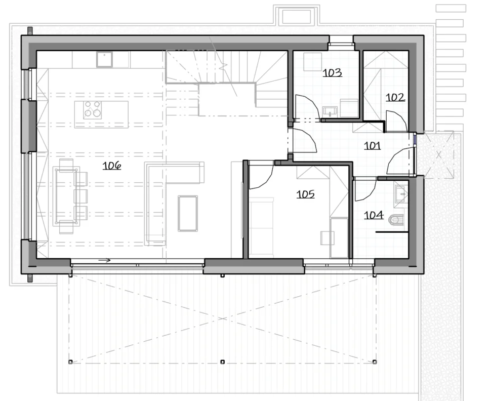
Půdorys 1NP

| 101-Zádveří | 5,9 m² |
|---|---|
| 102-Šatna | 3,9 m² |
| 103-Technická místnost | 5,2 m² |
| 104-Koupelna s WC | 4,9 m² |
| 105-Pracovna / pokoj pro hosty | 10,7 m² |
| 106-Obývací pokoj + KK | 53,9 m² |
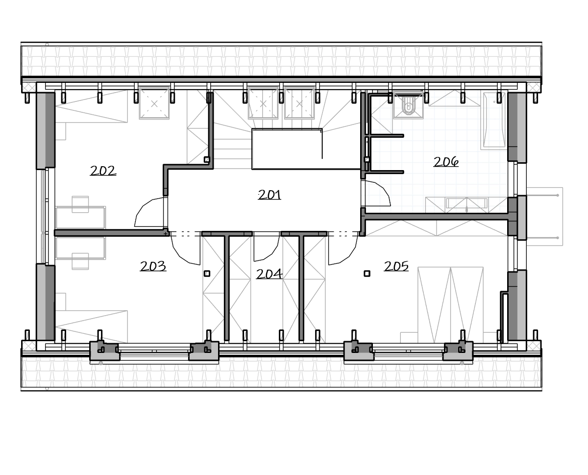
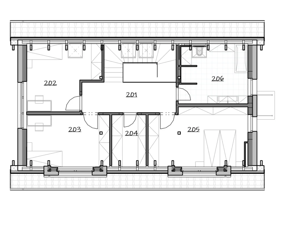
Půdorys 2NP

| 201-Chodba/galerie | 18,0 m² |
|---|---|
| 202-Pokoj | 14,1 m² |
| 203-Pokoj | 13,0 m² |
| 204-Šatna | 5,7 m² |
| 205-Ložnice | 17,6 m² |
| 206-Koupelna | 12,7 m² |
Půdorys 1NP

| 101-Zádveří | 5,9 m² |
|---|---|
| 102-Šatna | 3,9 m² |
| 103-Technická místnost | 5,2 m² |
| 104-Koupelna s WC | 4,9 m² |
| 105-Pracovna / pokoj pro hosty | 10,7 m² |
| 106-Obývací pokoj + KK | 53,9 m² |
Půdorys 2NP

| 201-Chodba/galerie | 18,0 m² |
|---|---|
| 202-Pokoj | 14,1 m² |
| 203-Pokoj | 13,0 m² |
| 204-Šatna | 5,7 m² |
| 205-Ložnice | 17,6 m² |
| 206-Koupelna | 12,7 m² |
Na svahovitém pozemku o rozloze 1119 m² v klidné části Žiliny u Nového Jičína vzniká promyšleně navržená novostavba rodinného domu, která kombinuje tradiční tvarosloví se současným výrazem a důrazem na praktičnost i estetiku. Jednoduchý obdélníkový půdorys, sedlová střecha se dvěma vikýři a citlivě vyvážený objem vytvářejí kompaktní, přesto vzdušné bydlení pro čtyřčlennou rodinu.
Dům je orientován směrem do zahrady na jih, kde se otevírá velkoformátovým HS portálem na terasu, zastřešenou bioklimatickou pergolou. Interiér v přízemí nabízí otevřený obytný prostor s kuchyní, jídelnou a obývacím pokojem, ze kterého vede schodiště do podkroví. V přízemí se dále nachází technická místnost, koupelna, šatna a vstupní zádveří. V patře jsou situovány dvě dětské ložnice, hlavní ložnice a koupelna se šatnou, čímž vzniká dostatečné zázemí pro všechny členy domácnosti.
Zastavěná plocha domu činí 108 m², užitná plocha dosahuje 165,7 m² a díky důkladně vyřešené dispozici působí interiér kompaktně a svěže. Konstrukčně je dům vyzděn z pórobetonových bloků se zateplením systémem ETICS, doplněným o svislý dřevěný obklad. Sedlovou střechu se sklonem 45° doplňují pultové vikýře se sklonem 20°, které zajišťují prosvětlení podkrovních pokojů.
V jižní části pozemku navazuje zahradní domek s krytým stáním, jehož konstrukce i materiálové řešení navazují na hlavní dům. Dům je napojen stávajícím sjezdem na komunikaci a doplněn o zpevněné plochy pro parkování. Celý návrh je koncipován jako funkční, energeticky úsporné bydlení s maximálním důrazem na komfort a každodenní využitelnost, ideální pro rodinný život v moderním pojetí venkovského stylu.
Na prostorném pozemku o výměře 1362 m² v klidné části města Příbor vzniká novostavba rodinného domu s plochou střechou, jejíž moderní pojetí propojuje obytný prostor a garáž do jedné kompaktní hmoty. Architektonický návrh domu ve tvaru písmene „Z“ vytváří přirozené členění na společenskou a soukromou část, přičemž fasáda je otevřena směrem do zahrady s krytou terasou.
Dispozice domu je orientována na pohodlí čtyřčlenné rodiny. Vstupní zádveří ústí do chodby, která propojuje obytnou část se zbytkem domu. Obývací pokoj, jídelna a kuchyně tvoří vzdušný společenský prostor s velkými prosklenými plochami a přístupem na terasu. V klidové části domu se nachází ložnice, dva dětské pokoje, pracovna, dále technická místnost, koupelna a WC. Garáž je přístupná jak zvenku, tak ze zádveří, což usnadňuje každodenní provoz.
Dům je navržen jako nízkoenergetický, s důrazem na jednoduchost, funkčnost a moderní design. Stěny z pórobetonových tvárnic, zateplení systémem ETICS a kombinace omítky a dřevěného obkladu na fasádě zajišťují stabilitu, tepelnou pohodu a vizuálně příjemný kontrast. Plochá střecha chrání před přehříváním a podtrhuje čisté linie stavby.
Zastavěná plocha činí 283,13 m², užitná plocha 170,5 m² a výška objektu nepřesahuje 3,7 m. Dům tak zapadá do okolní zástavby rodinných domů. Díky promyšlenému řešení stínění, umístění obytných místností a dostatečnému oslunění je tento dům ideální volbou pro ty, kdo hledají moderní a pohodlné bydlení bez kompromisů.
Video průlet:

















