PROJEKT NA MÍRU
Novostavba rodinného domu v Novém Jičíně
Pohodlné bydlení v klidné části Žiliny
| 🏡 Dispozice | 4+kk |
|---|---|
| 🎯 Energetický štítek | B |
| 📐 Užitná plocha | 127,9 m² |
| 📏 Zastavěná plocha | 184,6 m² |
| 🛠️ Projekt | 2023 |
| 📍 Lokalita | Žilina u NJ |
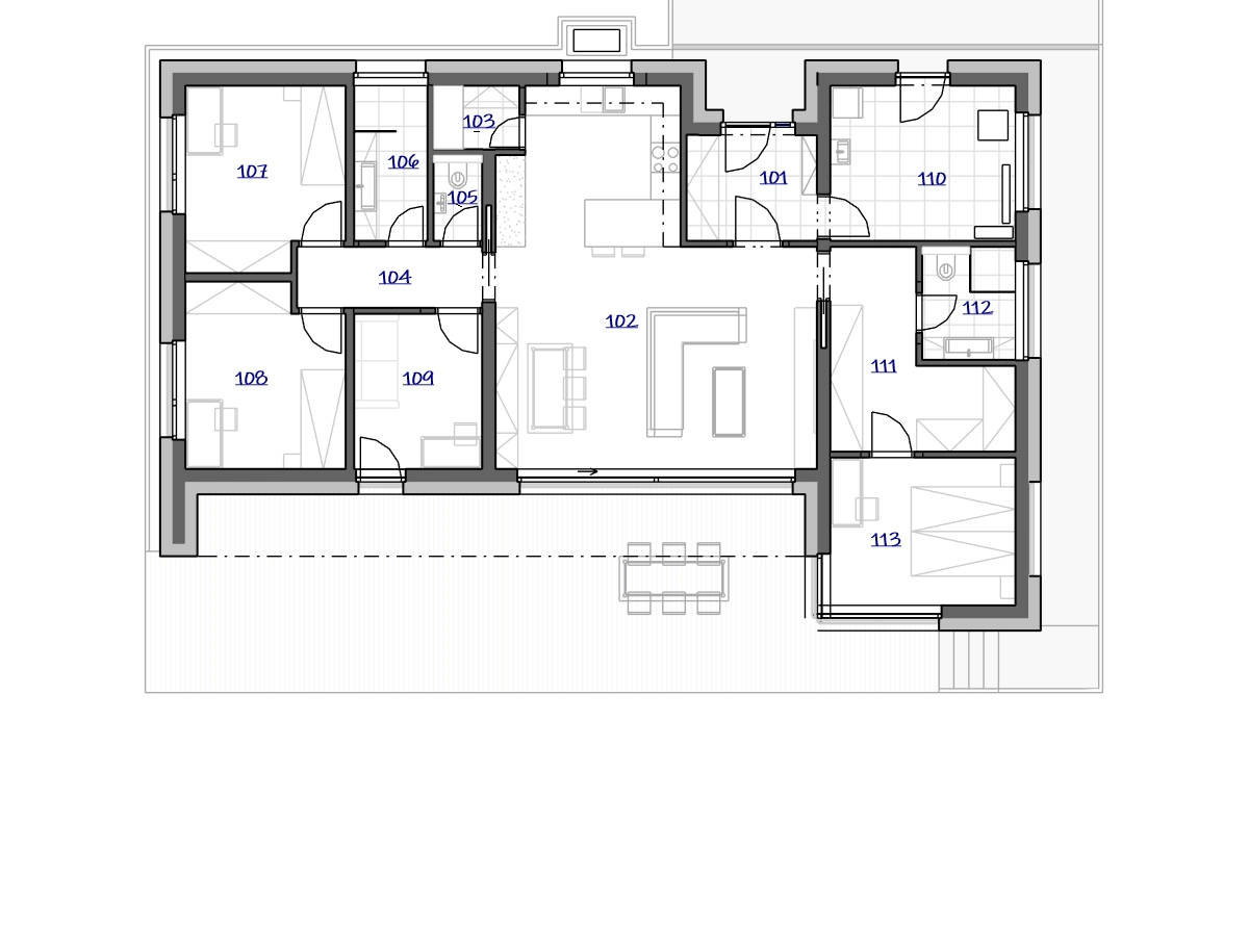
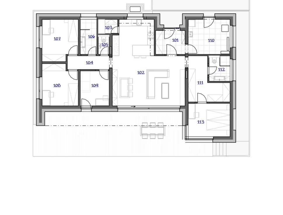
Půdorys 1NP

| 101-Zádveří | 5,6 m² |
|---|---|
| 102-Obývací pokoj + KK | 40,3 m² |
| 103-Spíž | 2,2 m² |
| 104-Chodba | 4,6 m² |
| 105-WC | 1,7 m² |
| 106-Koupelna | 4,6 m² |
| 107-Pokoj | 11,5 m² |
| 108-Pokoj | 11,5 m² |
| 109-Pracovna | 8,1 m² |
| 110-Technická m. | 11,7 m² |
| 111-Šatna | 10,6 m² |
Půdorys 1NP

| 101-Zádveří | 5,6 m² |
|---|---|
| 102-Obývací pokoj + KK | 40,3 m² |
| 103-Spíž | 2,2 m² |
| 104-Chodba | 4,6 m² |
| 105-WC | 1,7 m² |
| 106-Koupelna | 4,6 m² |
| 107-Pokoj | 11,5 m² |
| 108-Pokoj | 11,5 m² |
| 109-Pracovna | 8,1 m² |
| 110-Technická m. | 11,7 m² |
| 111-Šatna | 10,6 m² |
V atraktivní lokalitě jižní části Nového Jičína, v městské části Žilina, vzniká moderní přízemní rodinný dům navržený s důrazem na funkční dispoziční řešení, dostatek soukromí a příjemné propojení interiéru s okolním pozemkem. Projekt je připraven na pozemku o výměře 833 m², který nabízí ideální orientaci i dostatek prostoru pro relaxaci, zahradu i praktické zázemí.
Rodinný dům je navržen jako samostatně stojící nepodsklepený objekt s plochou střechou, jednoduchou linií a velkorysým půdorysem ve tvaru obdélníku (cca 17,75 × 11,5 m). Vstup do domu je řešen ze severní strany, přímým napojením na nově navržený sjezd z účelové komunikace.
Dispozice domu počítá s plnohodnotným zázemím pro čtyřčlennou domácnost – otevřený obytný prostor v centrální části stavby propojuje kuchyni, jídelnu a obývací pokoj se vstupem na terasu. Na východě domu se nachází ložnice se šatnou a koupelnou, v západní části pak dva dětské pokoje, pracovna, druhá koupelna a samostatné WC. Nechybí ani technická místnost s přístupem z exteriéru, ideální pro úschovu vybavení nebo technologií domu.
Zastavěná plocha činí 184,63 m², užitná plocha 127,9 m² a dům je navržen s maximálním ohledem na přirozené osvětlení, přehlednost dispozice a komfort každodenního užívání. Architektonické řešení ctí moderní trend – jednoduché hmoty, funkčnost bez kompromisů a propojení s exteriérem.
Projekt zahrnuje i vybudování oplocení, zpevněných ploch a kompletní napojení na inženýrské sítě. Celková výška domu nepřesáhne 3,85 m, čímž harmonicky zapadá do plánované zástavby podobných rodinných domů v lokalitě.
Tento dům je ideální volbou pro ty, kteří hledají moderní a efektivní bydlení v klidné lokalitě s výbornou dostupností do města.
V atraktivní lokalitě jižní části Nového Jičína, v městské části Žilina, vzniká moderní přízemní rodinný dům navržený s důrazem na funkční dispoziční řešení, dostatek soukromí a příjemné propojení interiéru s okolním pozemkem. Projekt je připraven na pozemku o výměře 833 m², který nabízí ideální orientaci i dostatek prostoru pro relaxaci, zahradu i praktické zázemí.
Rodinný dům je navržen jako samostatně stojící nepodsklepený objekt s plochou střechou, jednoduchou linií a velkorysým půdorysem ve tvaru obdélníku (cca 17,75 × 11,5 m). Vstup do domu je řešen ze severní strany, přímým napojením na nově navržený sjezd z účelové komunikace.
Dispozice domu počítá s plnohodnotným zázemím pro čtyřčlennou domácnost – otevřený obytný prostor v centrální části stavby propojuje kuchyni, jídelnu a obývací pokoj se vstupem na terasu. Na východě domu se nachází ložnice se šatnou a koupelnou, v západní části pak dva dětské pokoje, pracovna, druhá koupelna a samostatné WC. Nechybí ani technická místnost s přístupem z exteriéru, ideální pro úschovu vybavení nebo technologií domu.
Zastavěná plocha činí 184,63 m², užitná plocha 127,9 m² a dům je navržen s maximálním ohledem na přirozené osvětlení, přehlednost dispozice a komfort každodenního užívání. Architektonické řešení ctí moderní trend – jednoduché hmoty, funkčnost bez kompromisů a propojení s exteriérem.
Projekt zahrnuje i vybudování oplocení, zpevněných ploch a kompletní napojení na inženýrské sítě. Celková výška domu nepřesáhne 3,85 m, čímž harmonicky zapadá do plánované zástavby podobných rodinných domů v lokalitě.
Tento dům je ideální volbou pro ty, kteří hledají moderní a efektivní bydlení v klidné lokalitě s výbornou dostupností do města.
Video průlet:

















