PROJEKT NA MÍRU
Rodinný dům zasazený do svahu
Moderní dvoupodlažní bydlení v Závišicích
🏡 Dispozice | 4+kk |
---|---|
🎯 Energetický štítek | B |
📐 Užitná plocha | 163,9 m² |
📏 Zastavěná plocha | 151,6 m² |
🛠️ Projekt | 2023 |
📍 Lokalita | Závišice |
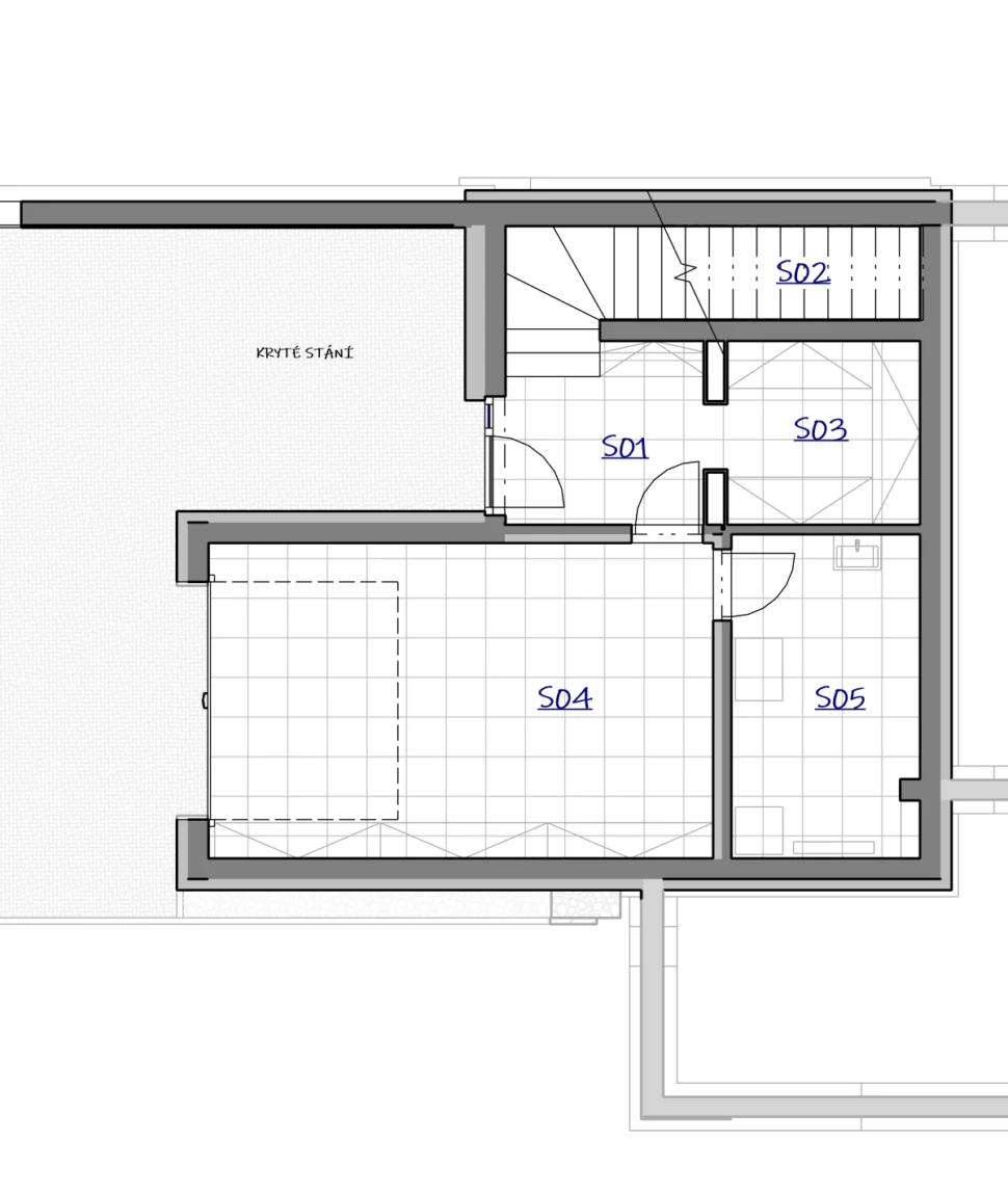
Půdorys 1S

S01-Zádveří | 5,7 m² |
---|---|
S02-Schodiště | 7,0 m² |
S03-Šatna | 5,8 m² |
S04-Garáž | 25,4 m² |
S05-Technická místnost | 9,4 m² |
Půdorys 1NP

101-Schodiště | 5,9 m² |
---|---|
102-Obývací pokoj + KK | 41,1 m² |
103-Chodba | 10,0 m² |
104-Sklad | 2,7 m² |
105-WC | 2,1 m² |
106-Koupelna | 5,9 m² |
107-Pokoj | 11,6 m² |
108-Pokoj | 11,6 m² |
109-Pracovna | 10,3 m² |
110-Ložnice | 9,2 m² |
Půdorys 1S

S01-Zádveří | 5,7 m² |
---|---|
S02-Schodiště | 7,0 m² |
S03-Šatna | 5,8 m² |
S04-Garáž | 25,4 m² |
S05-Technická místnost | 9,4 m² |
Půdorys 1NP

101-Schodiště | 5,9 m² |
---|---|
102-Obývací pokoj + KK | 41,1 m² |
103-Chodba | 10,0 m² |
104-Sklad | 2,7 m² |
105-WC | 2,1 m² |
106-Koupelna | 5,9 m² |
107-Pokoj | 11,6 m² |
108-Pokoj | 11,6 m² |
109-Pracovna | 10,3 m² |
110-Ložnice | 9,2 m² |
Ve východní části obce Závišice, na klidném svahovitém pozemku s výhledem do zeleně, vzniká novostavba dvoupodlažního rodinného domu s plochou střechou a terasou, navržená pro pohodlný život čtyřčlenné rodiny. Dům je elegantně zasazen do terénu – suterén je z části zapuštěn pod úroveň terénu, což umožňuje přirozené oddělení technického a obytného provozu a současně zajišťuje přímý vstup do zahrady z horního podlaží.
Rodinný dům je navržen jako samostatně stojící objekt s jednou bytovou jednotkou a vstupem z přístupové komunikace na západní straně. Dispozice efektivně využívá výškový rozdíl pozemku – vjezd do garáže a vstup do domu je situován v úrovni suterénu, zatímco obytná část se rozkládá o patro výš, s přímým napojením na východní část pozemku, zahradu a terasu.
Půdorysný tvar domu je ve 2.NP obdélníkový (16,75 × 9,05 m), s jemně zapuštěným jihovýchodním rohem, který vytváří chráněné místo pro částečně zastřešenou terasu. Celková užitková plocha domu činí 163,9 m², přičemž obytné prostory vynikají svou světlostí, propojením s exteriérem a logickým členěním.
V suterénu se nachází prostorné zádveří, šatna, garáž a technická místnost. Hlavní obytné podlaží (1NP) nabízí otevřený koncept kuchyně, jídelny a obývacího pokoje s přímým vstupem na terasu a zahradu. Dále zde najdeme dvě dětské ložnice, hlavní ložnici, pracovnu, koupelnu, samostatné WC a praktickou spíž.
Konstrukčně je dům navržen jako masivní stavba s plochou střechou (sklon 3 %), zatepleným fasádním systémem ETICS, plastovými/hliníkovými okny s izolačním trojsklem a promyšleným využitím betonových i pórobetonových prvků. Zastavěná plocha činí 151,59 m², obestavěný prostor 695,3 m³. Veškeré zpevněné plochy, oplocení i přípojky inženýrských sítí jsou součástí návrhu.
Tento projekt je ideálním řešením pro ty, kteří hledají moderní a technicky vyspělý dům v klidné lokalitě s jedinečným zasazením do terénu, v dochozí vzdálenosti od přírody, ale zároveň v dostupnosti městské infrastruktury.
Ve východní části obce Závišice, na klidném svahovitém pozemku s výhledem do zeleně, vzniká novostavba dvoupodlažního rodinného domu s plochou střechou a terasou, navržená pro pohodlný život čtyřčlenné rodiny. Dům je elegantně zasazen do terénu – suterén je z části zapuštěn pod úroveň terénu, což umožňuje přirozené oddělení technického a obytného provozu a současně zajišťuje přímý vstup do zahrady z horního podlaží.
Rodinný dům je navržen jako samostatně stojící objekt s jednou bytovou jednotkou a vstupem z přístupové komunikace na západní straně. Dispozice efektivně využívá výškový rozdíl pozemku – vjezd do garáže a vstup do domu je situován v úrovni suterénu, zatímco obytná část se rozkládá o patro výš, s přímým napojením na východní část pozemku, zahradu a terasu.
Půdorysný tvar domu je ve 2.NP obdélníkový (16,75 × 9,05 m), s jemně zapuštěným jihovýchodním rohem, který vytváří chráněné místo pro částečně zastřešenou terasu. Celková užitková plocha domu činí 163,9 m², přičemž obytné prostory vynikají svou světlostí, propojením s exteriérem a logickým členěním.
V suterénu se nachází prostorné zádveří, šatna, garáž a technická místnost. Hlavní obytné podlaží (1NP) nabízí otevřený koncept kuchyně, jídelny a obývacího pokoje s přímým vstupem na terasu a zahradu. Dále zde najdeme dvě dětské ložnice, hlavní ložnici, pracovnu, koupelnu, samostatné WC a praktickou spíž.
Konstrukčně je dům navržen jako masivní stavba s plochou střechou (sklon 3 %), zatepleným fasádním systémem ETICS, plastovými/hliníkovými okny s izolačním trojsklem a promyšleným využitím betonových i pórobetonových prvků. Zastavěná plocha činí 151,59 m², obestavěný prostor 695,3 m³. Veškeré zpevněné plochy, oplocení i přípojky inženýrských sítí jsou součástí návrhu.
Tento projekt je ideálním řešením pro ty, kteří hledají moderní a technicky vyspělý dům v klidné lokalitě s jedinečným zasazením do terénu, v dochozí vzdálenosti od přírody, ale zároveň v dostupnosti městské infrastruktury.
Video průlet: