PROJEKT NA MÍRU

Novostavba rodinného domu se samostatnou garáží

Moderní bydlení v Suchdolu nad Odrou

🏡 Dispozice5+kk
🎯 Energetický štítekB
📐 Užitná plocha137,4 m²
📏 Zastavěná plocha175,5 m²
🛠️ Projekt2023
📍 LokalitaSuchdol n. O.

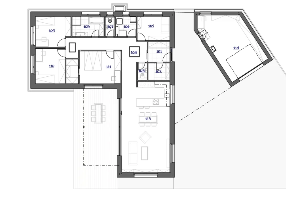
Půdorys 1NP

101-Zádveří 4,9 m2
102-Spíž4,0 m2
103-WC1,8 m2
104-Chodba18,9 m2
105-Pracovna8,5 m2
106-Technické místnost4,5 m2
107-WC2,0 m2
108-Koupelna6,1 m2
109- Pokoj11,1 m2
110-Pokoj11,3 m2
111-Ložnice14,5 m2
112-Šatna3,3 m2
113-Obývací pokoj + KK46,5 m2
114-Garáž30,3 m2

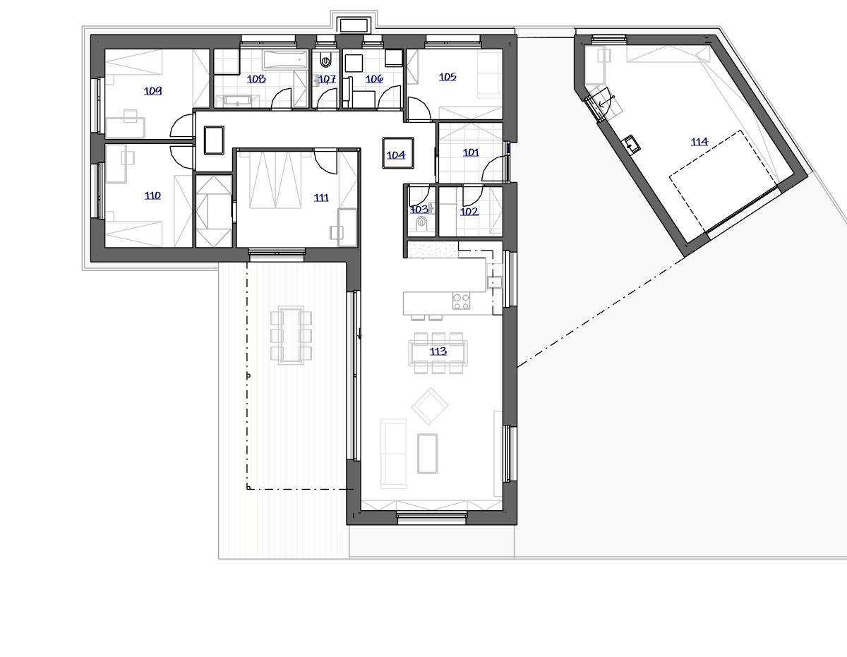
Půdorys 1NP

101-Zádveří 4,9 m2
102-Spíž4,0 m2
103-WC1,8 m2
104-Chodba18,9 m2
105-Pracovna8,5 m2
106-Technické místnost4,5 m2
107-WC2,0 m2
108-Koupelna6,1 m2
109- Pokoj11,1 m2
110-Pokoj11,3 m2
111-Ložnice14,5 m2
112-Šatna3,3 m2
113-Obývací pokoj + KK46,5 m2
114-Garáž30,3 m2

Video průlet:

Na prostorném pozemku v severní části obce Suchdol nad Odrou vzniká moderní rodinný dům s důrazem na jednoduchost, funkčnost a komfort. Stavba zahrnuje samotný rodinný dům, samostatně stojící garáž, propojení krytým prostorem, oplocení, zpevněné plochy a kompletní napojení na inženýrské sítě.

Dům je navržen jako jednopodlažní nepodsklepený objekt s plochou střechou, jehož tvar do „L“ přirozeně vytváří soukromé zákoutí pro terasu a zahradu. Celková zastavěná plocha domu činí 175,5 m², užitková plocha 137,4 m². K domu přiléhá garáž o zastavěné ploše 38,9 m², která je s domem propojena společnou střechou – vzniká tak praktický krytý prostor využitelný pro stání vozu nebo jako suchý přechod mezi objekty.

Pozemek o výměře 1 316 m² je mírně svažitý a otevřený směrem na východ, přístupný novým sjezdem z přilehlé komunikace. Dům je umístěn v jeho severovýchodní části, což umožňuje ideální orientaci obytných prostor na slunnou jižní a západní stranu. Zahrada a terasa navazují na obytnou zónu domu a poskytují prostor pro odpočinek i venkovní aktivity.

Dispozičně dům nabízí komfortní uspořádání pro čtyřčlennou rodinu: ze vstupního zádveří s přístupem do spíže se vstupuje do centrální chodby, z níž jsou přístupné jednotlivé místnosti. Obývací pokoj s jídelnou a kuchyní tvoří hlavní obytný prostor v jižním křídle domu, zatímco ložnice, dětské pokoje, koupelna, WC a technická místnost jsou rozmístěny v severní a západní části. Garáž je řešena jako samostatná místnost se dvěma vstupy – garážovými vraty a vedlejšími dveřmi naproti vstupu do domu.

Nosná konstrukce domu je navržena jako dřevěný rám se zateplením minerální vatou, opláštěný OSB deskami. Strop tvoří dřevěné trámy skryté pod sádrokartonovým podhledem. Fasáda kombinuje klasickou omítku s prvky dřevěného obkladu, která dává stavbě moderní, ale zároveň příjemně hřejivý vzhled. Okna jsou plastová s izolačním trojsklem, střešní plášť je řešen jako plochá střecha s atikou a hydroizolační vrstvou z PVC.

Tento projekt spojuje moderní architektonické řešenípraktickými požadavky každodenního rodinného života – ať už jde o komfortní dispozici, propojení garáže s domem nebo příjemné napojení na exteriér. Ideální volba pro ty, kteří hledají pohodlné a funkční bydlení v příjemné lokalitě s výhledem do zeleně.

Na prostorném pozemku v severní části obce Suchdol nad Odrou vzniká moderní rodinný dům s důrazem na jednoduchost, funkčnost a komfort. Stavba zahrnuje samotný rodinný dům, samostatně stojící garáž, propojení krytým prostorem, oplocení, zpevněné plochy a kompletní napojení na inženýrské sítě.

Dům je navržen jako jednopodlažní nepodsklepený objekt s plochou střechou, jehož tvar do „L“ přirozeně vytváří soukromé zákoutí pro terasu a zahradu. Celková zastavěná plocha domu činí 175,5 m², užitková plocha 137,4 m². K domu přiléhá garáž o zastavěné ploše 38,9 m², která je s domem propojena společnou střechou – vzniká tak praktický krytý prostor využitelný pro stání vozu nebo jako suchý přechod mezi objekty.

Pozemek o výměře 1 316 m² je mírně svažitý a otevřený směrem na východ, přístupný novým sjezdem z přilehlé komunikace. Dům je umístěn v jeho severovýchodní části, což umožňuje ideální orientaci obytných prostor na slunnou jižní a západní stranu. Zahrada a terasa navazují na obytnou zónu domu a poskytují prostor pro odpočinek i venkovní aktivity.

Dispozičně dům nabízí komfortní uspořádání pro čtyřčlennou rodinu: ze vstupního zádveří s přístupem do spíže se vstupuje do centrální chodby, z níž jsou přístupné jednotlivé místnosti. Obývací pokoj s jídelnou a kuchyní tvoří hlavní obytný prostor v jižním křídle domu, zatímco ložnice, dětské pokoje, koupelna, WC a technická místnost jsou rozmístěny v severní a západní části. Garáž je řešena jako samostatná místnost se dvěma vstupy – garážovými vraty a vedlejšími dveřmi naproti vstupu do domu.

Nosná konstrukce domu je navržena jako dřevěný rám se zateplením minerální vatou, opláštěný OSB deskami. Strop tvoří dřevěné trámy skryté pod sádrokartonovým podhledem. Fasáda kombinuje klasickou omítku s prvky dřevěného obkladu, která dává stavbě moderní, ale zároveň příjemně hřejivý vzhled. Okna jsou plastová s izolačním trojsklem, střešní plášť je řešen jako plochá střecha s atikou a hydroizolační vrstvou z PVC.

Tento projekt spojuje moderní architektonické řešenípraktickými požadavky každodenního rodinného života – ať už jde o komfortní dispozici, propojení garáže s domem nebo příjemné napojení na exteriér. Ideální volba pro ty, kteří hledají pohodlné a funkční bydlení v příjemné lokalitě s výhledem do zeleně.

Video průlet: