PROJEKT NA MÍRU
Rodinný dům s obytným podkrovím, suterénem a krytým stáním
Spojení přírody, dřeva a chytré architektury ve Skalici u Frýdku-Místku
| 🏡 Dispozice | |
|---|---|
| 🎯 Energetický štítek | B |
| 📐 Užitná plocha | 123,5 m² |
| 📏 Zastavěná plocha | 71,82 m² |
| 🛠️ Projekt | 2024 |
| 📍 Lokalita | Skalice u FM |
Na svahovitém pozemku v okrajové části města Frýdek-Místek, v klidném prostředí katastru Skalice, vzniká jedinečný rodinný dům s obytným podkrovím, suterénem a krytým stáním. Projekt je navržen s maximálním respektem k terénu i okolní krajině – kombinuje tradiční roubenou konstrukci s moderními technickými řešeními, aby nabídl komfortní, a přitom citlivě zasazené bydlení pro tříčlennou rodinu.
Jednopodlažní dům s obytným podkrovím a suterénem je osazen do horní části parcely tak, aby využil výhledu a zároveň nabízel soukromí. Zastavěná plocha činí 71,82 m² a užitková plocha celého domu je 123,5 m². Hlavní obytný prostor je orientován na jih a západ, směrem do zahrady s navazující dřevěnou terasou. Suterénní část je přístupná samostatně ze zpevněné plochy pod svahem.
Stavba je technicky rozdělena do tří úrovní:
Suterén je určen pro zázemí – technickou místnost, koupelnu a budoucí saunu.
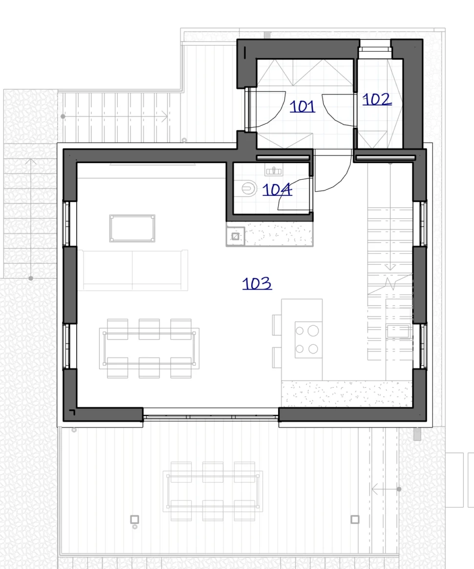
1. nadzemní podlaží tvoří roubená hlavní hmota s kuchyní, jídelnou a obývacím pokojem otevřeným do zahrady. Ve vstupní přístavbě se nachází zádveří, spíž a WC.
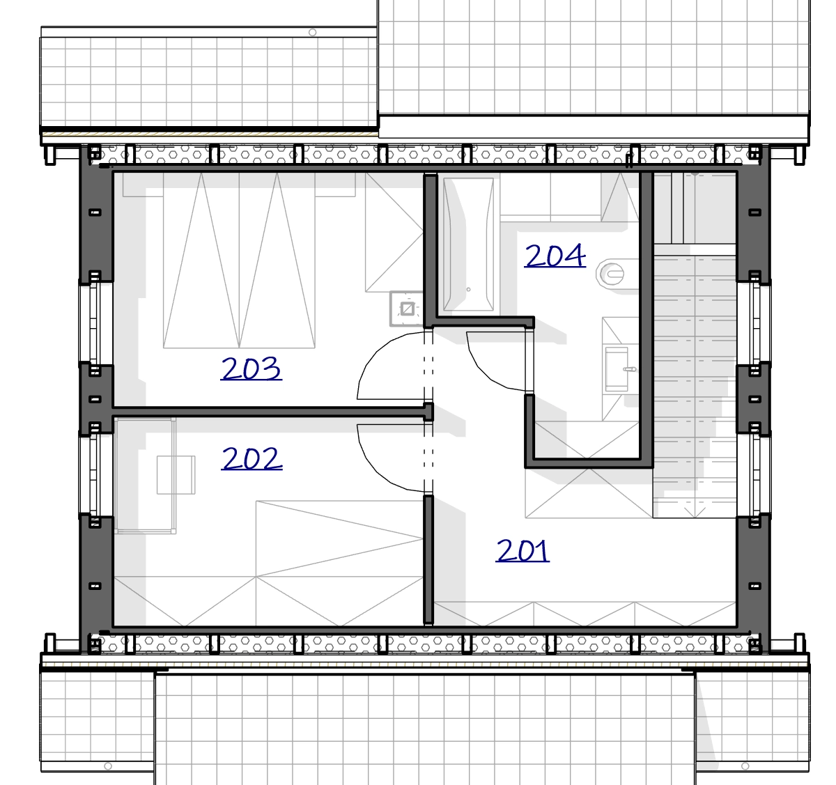
Podkroví pak nabízí soukromé zóny – ložnici, pokoj a koupelnu.
Architektura domu pracuje s kombinací materiálů – roubené stěny jako dominantní prvek, doplněné zděnou přístavbou zateplenou systémem ETICS, štítovými stěnami s dřevěným obkladem a sedlovou střechou s keramickou krytinou. Okna a dveře jsou dřevěná s izolačním trojsklem a elegantními šambránami.
Součástí projektu je i kryté stání pro osobní automobil, napojené na nově budovaný sjezd z účelové komunikace. Přístup k domu zajišťuje systém kamenných schodišť a zpevněných ploch, citlivě zasazených do svahu. Zahrada bude ponechána k individuálnímu využití – ať už pro relaxaci, výsadbu nebo drobné zahradní stavby.
Tento dům je navržen pro ty, kteří hledají spojení přírodního materiálu, klidného místa a moderního způsobu života. Výrazná architektura s roubenou konstrukcí, promyšlené rozvržení prostor a využití terénu dělají z tohoto domu výjimečné místo pro život – v přírodě, ale s veškerým komfortem.
Na svahovitém pozemku v okrajové části města Frýdek-Místek, v klidném prostředí katastru Skalice, vzniká jedinečný rodinný dům s obytným podkrovím, suterénem a krytým stáním. Projekt je navržen s maximálním respektem k terénu i okolní krajině – kombinuje tradiční roubenou konstrukci s moderními technickými řešeními, aby nabídl komfortní, a přitom citlivě zasazené bydlení pro tříčlennou rodinu.
Jednopodlažní dům s obytným podkrovím a suterénem je osazen do horní části parcely tak, aby využil výhledu a zároveň nabízel soukromí. Zastavěná plocha činí 71,82 m² a užitková plocha celého domu je 123,5 m². Hlavní obytný prostor je orientován na jih a západ, směrem do zahrady s navazující dřevěnou terasou. Suterénní část je přístupná samostatně ze zpevněné plochy pod svahem.
Stavba je technicky rozdělena do tří úrovní:
Suterén je určen pro zázemí – technickou místnost, koupelnu a budoucí saunu.
1. nadzemní podlaží tvoří roubená hlavní hmota s kuchyní, jídelnou a obývacím pokojem otevřeným do zahrady. Ve vstupní přístavbě se nachází zádveří, spíž a WC.
Podkroví pak nabízí soukromé zóny – ložnici, pokoj a koupelnu.
Architektura domu pracuje s kombinací materiálů – roubené stěny jako dominantní prvek, doplněné zděnou přístavbou zateplenou systémem ETICS, štítovými stěnami s dřevěným obkladem a sedlovou střechou s keramickou krytinou. Okna a dveře jsou dřevěná s izolačním trojsklem a elegantními šambránami.
Součástí projektu je i kryté stání pro osobní automobil, napojené na nově budovaný sjezd z účelové komunikace. Přístup k domu zajišťuje systém kamenných schodišť a zpevněných ploch, citlivě zasazených do svahu. Zahrada bude ponechána k individuálnímu využití – ať už pro relaxaci, výsadbu nebo drobné zahradní stavby.
Tento dům je navržen pro ty, kteří hledají spojení přírodního materiálu, klidného místa a moderního způsobu života. Výrazná architektura s roubenou konstrukcí, promyšlené rozvržení prostor a využití terénu dělají z tohoto domu výjimečné místo pro život – v přírodě, ale s veškerým komfortem.
Video průlet:























