PROJEKT NA MÍRU
Rodinný dům s garáží a krytým stáním v srdci Příbora
Promyšlené bydlení pod jednou střechou
| 🏡 Dispozice | 4+kk |
|---|---|
| 🎯 Energetický štítek | B |
| 📐 Užitná plocha | 141,7 m² |
| 📏 Zastavěná plocha | 93,5 m² |
| 🛠️ Projekt | 2023 |
| 📍 Lokalita | Příbor |
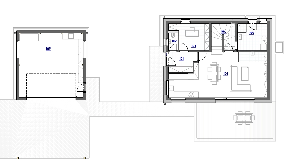
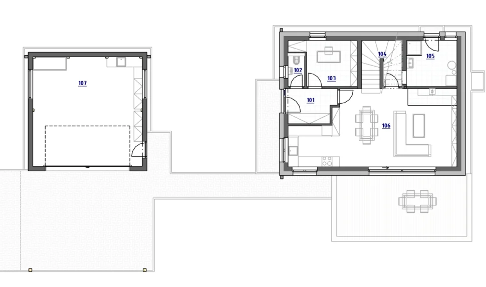
Půdorys 1NP

| 101-Zádveří | 5,6 m² |
|---|---|
| 102-WC | 1,9 m² |
| 103-Pracovna | 8,9 m² |
| 104-Schodiště | 3,2 m² |
| 105-Technická místnost | 11,4 m² |
| 106-Obývací pokoj + KK | 40,0 m² |
| 107-Garáž | 42,0 m² |
Půdorys 2NP

| 201-Chodba | 7,2 m² |
|---|---|
| 202-Koupelna | 8,3 m² |
| 203-WC | 2,0 m² |
| 204-Ložnice | 12,5 m² |
| 205-Šatna | 6,7 m² |
| 206-Pokoj | 13,3 m² |
| 207-Pokoj | 13,9 m² |
| 208-Schodiště | 6,4 m² |
Půdorys 1NP

| 101-Zádveří | 5,6 m² |
|---|---|
| 102-WC | 1,9 m² |
| 103-Pracovna | 8,9 m² |
| 104-Schodiště | 3,2 m² |
| 105-Technická místnost | 11,4 m² |
| 106-Obývací pokoj + KK | 40,0 m² |
| 107-Garáž | 42,0 m² |
Půdorys 2NP

| 201-Chodba | 7,2 m² |
|---|---|
| 202-Koupelna | 8,3 m² |
| 203-WC | 2,0 m² |
| 204-Ložnice | 12,5 m² |
| 205-Šatna | 6,7 m² |
| 206-Pokoj | 13,3 m² |
| 207-Pokoj | 13,9 m² |
| 208-Schodiště | 6,4 m² |
V centrální části města Příbor, na rovinatém pozemku obklopeném zástavbou rodinných domů, vzniká novostavba kompaktního a funkčně řešeného rodinného domu s obytným podkrovím, který nabízí ideální kombinaci pohodlného bydlení, praktického zázemí a elegantní architektury. Projekt zahrnuje i garáž, kryté stání, oplocení, zpevněné plochy a kompletní napojení na inženýrské sítě, včetně řešení splaškových vod.
Dům je navržen jako samostatně stojící objekt s jednou bytovou jednotkou pro čtyřčlennou rodinu. Architektonicky pracuje s klasickým tvarem obdélníku (11 × 8,5 m), sedlovou střechou se sklonem 35° a kombinací moderních materiálů – zateplený kontaktní systém ETICS, omítka a přírodní kamenný obklad. Dům je nepodsklepený, zastavěná plocha činí 93,5 m² a užitná plocha dosahuje 141,7 m².
Dispoziční řešení staví na jednoduchosti a maximálním využití prostoru. Vstup je veden ze západu, přes kryté stání, které plynule přechází do garáže. Ze zádveří je přístupná pracovna a WC, dále pak obytný prostor s kuchyní, jídelnou a obývacím pokojem. V přízemí se nachází také technická místnost a schodiště do podkroví. V patře jsou situovány dva dětské pokoje, šatna, koupelna a samostatné WC, hlavní ložnice je orientována na jih a je opticky oddělena od dětské části domu.
Krytý vjezd pod společnou střechou umožňuje pohodlné a chráněné parkování přímo vedle domu, vjezd do garáže je zároveň dostupný tímto krytým prostorem. Zastavěná plocha garáže činí 49,3 m², kryté stání zabírá 40,7 m² a obě části jsou zastřešeny společnou sedlovou střechou navazující na dům. Terasa na jižní straně objektu vytváří klidovou zónu, zatímco zbytek pozemku je využit jako zahrada.
Stavba je založena na klasických betonových pasech, nosné konstrukce tvoří pórobetonové tvárnice, strop je prefabrikovaný železobetonový, podkroví je zatepleno nadkrokevně a krov zůstává částečně pohledový. Střešní krytinu tvoří keramická taška, okna a dveře jsou plastová či hliníková s izolačním trojsklem.
Tento projekt představuje promyšlené rodinné bydlení v klidné části města, s důrazem na praktičnost, jednoduchost a příjemné propojení interiéru s venkovním prostorem – ideální pro rodiny, které hledají rovnováhu mezi komfortem, estetikou a efektivním využitím pozemku.
V centrální části města Příbor, na rovinatém pozemku obklopeném zástavbou rodinných domů, vzniká novostavba kompaktního a funkčně řešeného rodinného domu s obytným podkrovím, který nabízí ideální kombinaci pohodlného bydlení, praktického zázemí a elegantní architektury. Projekt zahrnuje i garáž, kryté stání, oplocení, zpevněné plochy a kompletní napojení na inženýrské sítě, včetně řešení splaškových vod.
Dům je navržen jako samostatně stojící objekt s jednou bytovou jednotkou pro čtyřčlennou rodinu. Architektonicky pracuje s klasickým tvarem obdélníku (11 × 8,5 m), sedlovou střechou se sklonem 35° a kombinací moderních materiálů – zateplený kontaktní systém ETICS, omítka a přírodní kamenný obklad. Dům je nepodsklepený, zastavěná plocha činí 93,5 m² a užitná plocha dosahuje 141,7 m².
Dispoziční řešení staví na jednoduchosti a maximálním využití prostoru. Vstup je veden ze západu, přes kryté stání, které plynule přechází do garáže. Ze zádveří je přístupná pracovna a WC, dále pak obytný prostor s kuchyní, jídelnou a obývacím pokojem. V přízemí se nachází také technická místnost a schodiště do podkroví. V patře jsou situovány dva dětské pokoje, šatna, koupelna a samostatné WC, hlavní ložnice je orientována na jih a je opticky oddělena od dětské části domu.
Krytý vjezd pod společnou střechou umožňuje pohodlné a chráněné parkování přímo vedle domu, vjezd do garáže je zároveň dostupný tímto krytým prostorem. Zastavěná plocha garáže činí 49,3 m², kryté stání zabírá 40,7 m² a obě části jsou zastřešeny společnou sedlovou střechou navazující na dům. Terasa na jižní straně objektu vytváří klidovou zónu, zatímco zbytek pozemku je využit jako zahrada.
Stavba je založena na klasických betonových pasech, nosné konstrukce tvoří pórobetonové tvárnice, strop je prefabrikovaný železobetonový, podkroví je zatepleno nadkrokevně a krov zůstává částečně pohledový. Střešní krytinu tvoří keramická taška, okna a dveře jsou plastová či hliníková s izolačním trojsklem.
Tento projekt představuje promyšlené rodinné bydlení v klidné části města, s důrazem na praktičnost, jednoduchost a příjemné propojení interiéru s venkovním prostorem – ideální pro rodiny, které hledají rovnováhu mezi komfortem, estetikou a efektivním využitím pozemku.
Video průlet:

















