PROJEKT NA MÍRU
Novostavba rodinného domu s krytým stáním a napojením na stávající garáž
Moderní bydlení v Žilině u Nového Jičína
| 🏡 Dispozice | 4+kk |
|---|---|
| 🎯 Energetický štítek | B |
| 📐 Užitná plocha | 144,4 m² |
| 📏 Zastavěná plocha | 200,0 m² |
| 🛠️ Projekt | 2023 |
| 📍 Lokalita | Žilina u NJ |
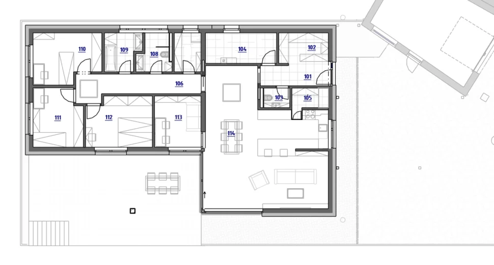
Půdorys 1NP

| 101-Zádveří | 5,7 m² |
|---|---|
| 102-Šatna | 5,3 m² |
| 103-WC | 1,9 m² |
| 104-Technická místnost | 8,1 m² |
| 105-Spíž | 3,1 m² |
| 106-Chodba | 10,1 m² |
| 107-Prádelna | 3,9 m² |
| 108-Koupelna + WC | 4,2 m² |
| 109-Koupelna | 4,8 m² |
| 110-Pokoj | 12,0 m² |
| 111-Pokoj | 10,5 m² |
| 112-Ložnice | 12,1 m² |
| 113-Pracovna | 8,9 m² |
| 114-Obývací pokoj | 53,7 m² |
Půdorys 1NP

| 101-Zádveří | 5,7 m² |
|---|---|
| 102-Šatna | 5,3 m² |
| 103-WC | 1,9 m² |
| 104-Technická místnost | 8,1 m² |
| 105-Spíž | 3,1 m² |
| 106-Chodba | 10,1 m² |
| 107-Prádelna | 3,9 m² |
| 108-Koupelna + WC | 4,2 m² |
| 109-Koupelna | 4,8 m² |
| 110-Pokoj | 12,0 m² |
| 111-Pokoj | 10,5 m² |
| 112-Ložnice | 12,1 m² |
| 113-Pracovna | 8,9 m² |
| 114-Obývací pokoj | 53,7 m² |
V městské části Žilina u Nového Jičína vzniká moderní rodinný dům s plochou střechou, terasou, krytým stáním a napojením na stávající garáž, situovaný na prostorném svahovitém pozemku o celkové výměře 1 375 m². Stavba je koncipována jako funkční a úsporné bydlení pro čtyřčlennou rodinu, s důrazem na propojení obytného interiéru s exteriérem a pohodlný provoz bez kompromisů.
Jednopodlažní nepodsklepený dům s vegetační plochou střechou a dvěma světlíky je navržen ve tvaru písmene „L“, díky čemuž přirozeně vytváří chráněnou zónu pro terasu a zahradu v jihozápadní části pozemku. Zastavěná plocha objektu činí 200 m², užitková plocha pak 144,4 m². Dispozičně je dům rozvržen tak, aby odděloval společenskou a klidovou část, a zároveň nabídl dostatek úložného i technického zázemí.
Vstup do domu je řešen z východní strany přes kryté stání, které tvoří přechodový prostor mezi domem a stávající garáží. Krytá dřevěná konstrukce nepravidelného tvaru plynule propojuje oba objekty a zároveň chrání vchod před nepříznivým počasím. Garáž zůstává funkčně zachována a využívá se jako doplňkový objekt k novostavbě.
V interiéru se nachází otevřený obytný prostor s kuchyní, jídelnou a obývacím pokojem, propojený s terasou. Dále je součástí dispozice pracovna, ložnice, dva pokoje, dvě koupelny, technická místnost, šatna a WC. Dům je vybaven plastovými a hliníkovými okny s izolačním trojsklem, zateplen systémem ETICS a doplněn kamenným obkladem pro oživení fasády. Střecha je řešena jako plochá s vegetačním souvrstvím, které přispívá k regulaci teploty a estetickému začlenění stavby do okolí.
Krytá stání a garáž slouží k pohodlnému parkování, napojení na inženýrské sítě je řešeno novou vodovodní přípojkou, splaškovou kanalizací, vedením NN a domovními rozvody. Všechny zpevněné plochy i oplocení jsou součástí návrhu a logicky navazují na stávající přístupovou komunikaci.
Tento projekt nabízí moderní, funkčně promyšlené bydlení v klidné části Nového Jičína, které kombinuje jednoduchost a praktičnost s důrazem na komfort a přirozený vztah k okolnímu prostředí.
V městské části Žilina u Nového Jičína vzniká moderní rodinný dům s plochou střechou, terasou, krytým stáním a napojením na stávající garáž, situovaný na prostorném svahovitém pozemku o celkové výměře 1 375 m². Stavba je koncipována jako funkční a úsporné bydlení pro čtyřčlennou rodinu, s důrazem na propojení obytného interiéru s exteriérem a pohodlný provoz bez kompromisů.
Jednopodlažní nepodsklepený dům s vegetační plochou střechou a dvěma světlíky je navržen ve tvaru písmene „L“, díky čemuž přirozeně vytváří chráněnou zónu pro terasu a zahradu v jihozápadní části pozemku. Zastavěná plocha objektu činí 200 m², užitková plocha pak 144,4 m². Dispozičně je dům rozvržen tak, aby odděloval společenskou a klidovou část, a zároveň nabídl dostatek úložného i technického zázemí.
Vstup do domu je řešen z východní strany přes kryté stání, které tvoří přechodový prostor mezi domem a stávající garáží. Krytá dřevěná konstrukce nepravidelného tvaru plynule propojuje oba objekty a zároveň chrání vchod před nepříznivým počasím. Garáž zůstává funkčně zachována a využívá se jako doplňkový objekt k novostavbě.
V interiéru se nachází otevřený obytný prostor s kuchyní, jídelnou a obývacím pokojem, propojený s terasou. Dále je součástí dispozice pracovna, ložnice, dva pokoje, dvě koupelny, technická místnost, šatna a WC. Dům je vybaven plastovými a hliníkovými okny s izolačním trojsklem, zateplen systémem ETICS a doplněn kamenným obkladem pro oživení fasády. Střecha je řešena jako plochá s vegetačním souvrstvím, které přispívá k regulaci teploty a estetickému začlenění stavby do okolí.
Krytá stání a garáž slouží k pohodlnému parkování, napojení na inženýrské sítě je řešeno novou vodovodní přípojkou, splaškovou kanalizací, vedením NN a domovními rozvody. Všechny zpevněné plochy i oplocení jsou součástí návrhu a logicky navazují na stávající přístupovou komunikaci.
Tento projekt nabízí moderní, funkčně promyšlené bydlení v klidné části Nového Jičína, které kombinuje jednoduchost a praktičnost s důrazem na komfort a přirozený vztah k okolnímu prostředí.
Video průlet:


















