PROJEKT NA MÍRU
Novostavba rodinného domu v Mořkově se sedlovou střechou
Rodinný dům s jednou bytovou jednotkou
| 🏡 Dispozice | 4+kk |
|---|---|
| 🎯 Energetický štítek | B |
| 📐 Užitná plocha | 100,6 m² |
| 📏 Zastavěná plocha | 145,7 m² |
| 🛠️ Projekt | 2023 |
| 📍 Lokalita | Mořkov |
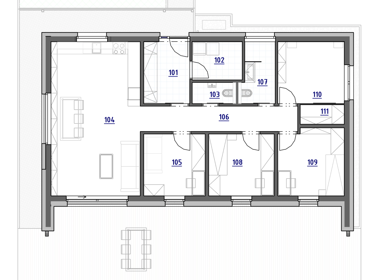
Půdorys 1NP

| 101-Zádveří | 6,7 m² |
|---|---|
| 102-Technická místnost | 4,5 m² |
| 103-WC | 2,2 m² |
| 104-Obývací pokoj + KK | 32,4 m² |
| 105-Pracovna / pokoj pro hosty | 9,0 m² |
| 106-Chodba | 9,4 m² |
| 107-Koupelna s WC | 4,8 m² |
| 108-Pokoj | 9,6 m² |
| 109-Pokoj | 10,3 m² |
| 110-Ložnice | 9,7 m² |
| 111-Šatna | 2,0 m² |
Půdorys 1NP

| 101-Zádveří | 6,7 m² |
|---|---|
| 102-Technická místnost | 4,5 m² |
| 103-WC | 2,2 m² |
| 104-Obývací pokoj + KK | 32,4 m² |
| 105-Pracovna / pokoj pro hosty | 9,0 m² |
| 106-Chodba | 9,4 m² |
| 107-Koupelna s WC | 4,8 m² |
| 108-Pokoj | 9,6 m² |
| 109-Pokoj | 10,3 m² |
| 110-Ložnice | 9,7 m² |
| 111-Šatna | 2,0 m² |
V západní části obce Mořkov, při výjezdu směrem na Hodslavice jsme realizovali novostavbu RD, která reflektuje aktuální potřeby investora i charakter lokality. Jedná se o samostatně stojící rodinný dům s jednou bytovou jednotkou, doplněný o kryté stání pro automobil, oplocení, zpevněné plochy a přípojky inženýrských sítí.
Rodinný dům je navržen jako jednopodlažní nepodsklepený objekt se sedlovou střechou o rozdílných sklonech (15°/40°). Dispozice je přehledná a praktická – s důrazem na komfort každodenního užívání pro čtyřčlennou domácnost.
Zastavěná plocha domu činí
145,7 m², užitková plocha dosahuje 100,6 m². Vstup do domu je orientován ze severní strany a je krytý střechou navazujícího krytého stání, které je řešeno jako samostatný zámečnický výrobek. Zádveří plynule navazuje na technickou místnost a chodbu, odkud jsou přístupné všechny ostatní místnosti: prostorný obývací pokoj s kuchyňským koutem na západě, ložnice, dětské pokoje a pracovna na jihu, hygienické zázemí a úložné prostory na severu. Ložnice je orientována do klidného severovýchodního rohu domu. Na jižní straně navazuje na dům terasa, chráněná výrazným přesahem střechy.
Kryté stání o rozměru 6 × 7 metrů bude sloužit jako pohodlné parkování s ochranou před nepřízní počasí. Konstrukčně je navrženo jako subtilní, ale stabilní zámečnický prvek s plochou střechou o sklonu 3 % a výškou 2,4 metru. Zastavěná plocha krytého stání je 47,5 m².
Celý objekt je situován na rovinatém pozemku o výměře 1 013 m², který umožňuje pohodlný přístup, přirozené oslunění a dostatek prostoru pro zahradu. Pozemek je napojen na přilehlou účelovou komunikaci ze severní strany.
Architektura domu je střídmá, funkční a vychází z proporcí klasického venkovského bydlení, zároveň ale reaguje na současné nároky na nízkoenergetické a technicky kvalitní řešení. Dům je zateplen kontaktním systémem ETICS, výplně otvorů tvoří izolační trojskla v plastových nebo hliníkových rámech, a konstrukce je postavena na osvědčených materiálech – od pórobetonu přes dřevěný krov až po betonové základy.
Tento projekt představuje jednoduché, ale promyšlené řešení pro pohodlný rodinný život – s dostatkem prostoru, logickou dispozicí a praktickým zázemím na klidném místě v srdci Mořkova.
V západní části obce Mořkov, při výjezdu směrem na Hodslavice jsme realizovali novostavbu RD, která reflektuje aktuální potřeby investora i charakter lokality. Jedná se o samostatně stojící rodinný dům s jednou bytovou jednotkou, doplněný o kryté stání pro automobil, oplocení, zpevněné plochy a přípojky inženýrských sítí.
Rodinný dům je navržen jako jednopodlažní nepodsklepený objekt se sedlovou střechou o rozdílných sklonech (15°/40°). Dispozice je přehledná a praktická – s důrazem na komfort každodenního užívání pro čtyřčlennou domácnost.
Zastavěná plocha domu činí
145,7 m², užitková plocha dosahuje 100,6 m². Vstup do domu je orientován ze severní strany a je krytý střechou navazujícího krytého stání, které je řešeno jako samostatný zámečnický výrobek. Zádveří plynule navazuje na technickou místnost a chodbu, odkud jsou přístupné všechny ostatní místnosti: prostorný obývací pokoj s kuchyňským koutem na západě, ložnice, dětské pokoje a pracovna na jihu, hygienické zázemí a úložné prostory na severu. Ložnice je orientována do klidného severovýchodního rohu domu. Na jižní straně navazuje na dům terasa, chráněná výrazným přesahem střechy.
Kryté stání o rozměru 6 × 7 metrů bude sloužit jako pohodlné parkování s ochranou před nepřízní počasí. Konstrukčně je navrženo jako subtilní, ale stabilní zámečnický prvek s plochou střechou o sklonu 3 % a výškou 2,4 metru. Zastavěná plocha krytého stání je 47,5 m².
Celý objekt je situován na rovinatém pozemku o výměře 1 013 m², který umožňuje pohodlný přístup, přirozené oslunění a dostatek prostoru pro zahradu. Pozemek je napojen na přilehlou účelovou komunikaci ze severní strany.
Architektura domu je střídmá, funkční a vychází z proporcí klasického venkovského bydlení, zároveň ale reaguje na současné nároky na nízkoenergetické a technicky kvalitní řešení. Dům je zateplen kontaktním systémem ETICS, výplně otvorů tvoří izolační trojskla v plastových nebo hliníkových rámech, a konstrukce je postavena na osvědčených materiálech – od pórobetonu přes dřevěný krov až po betonové základy.
Tento projekt představuje jednoduché, ale promyšlené řešení pro pohodlný rodinný život – s dostatkem prostoru, logickou dispozicí a praktickým zázemím na klidném místě v srdci Mořkova.
Video průlet:

















