PROJEKT NA MÍRU
Jednopodlažní rodinný dům ve tvaru „L“ s bioklimatickou pergolou
Komfortní bydlení v Loučce u Nového Jičína
| 🏡 Dispozice | 3+kk |
|---|---|
| 🎯 Energetický štítek | A |
| 📐 Užitná plocha | 99,5 m² |
| 📏 Zastavěná plocha | 130,5 m² |
| 🛠️ Projekt | 2025 |
| 📍 Lokalita | Loučka u NJ |
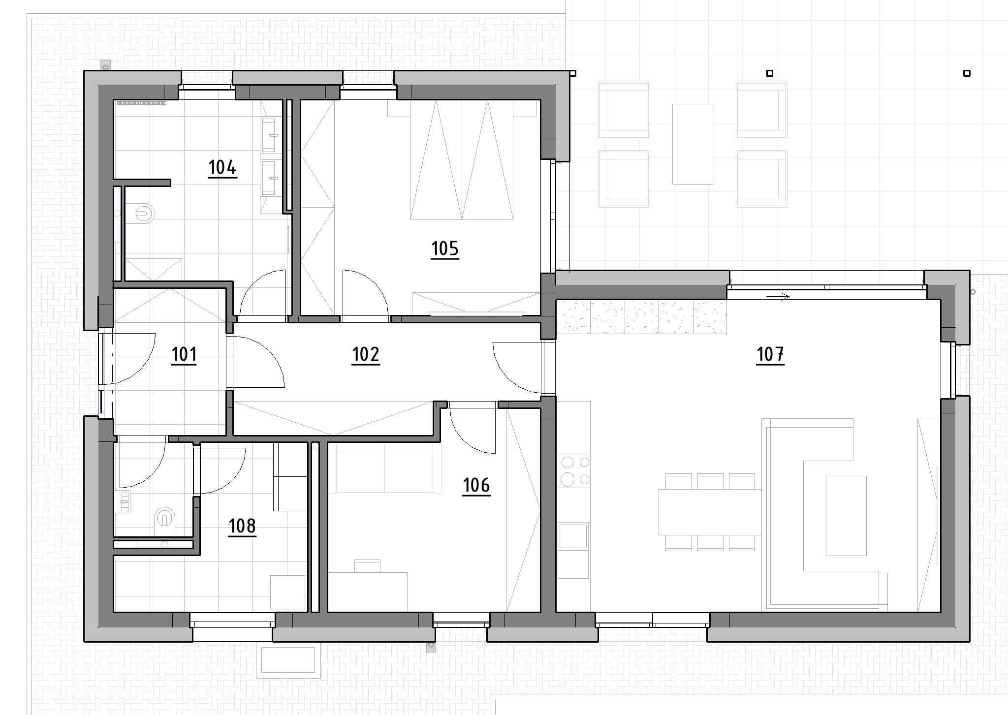
Půdorys 1NP

| 101-Zádveří | 5,1 m² |
|---|---|
| 102-Chodba | 9,5 m² |
| 103-WC | 2,3 m² |
| 104-Koupelna | 9,8 m² |
| 105-Ložnice | 15,9 m² |
| 106-Pokoj | 12,2 m² |
| 107-Obývací pokoj + KK | 36,9 m² |
| 108-Technická místnost | 7,1 m² |
Půdorys 1NP

| 101-Zádveří | 5,1 m² |
|---|---|
| 102-Chodba | 9,5 m² |
| 103-WC | 2,3 m² |
| 104-Koupelna | 9,8 m² |
| 105-Ložnice | 15,9 m² |
| 106-Pokoj | 12,2 m² |
| 107-Obývací pokoj + KK | 36,9 m² |
| 108-Technická místnost | 7,1 m² |
Na rovinatém pozemku o rozloze 1310 m²
v klidné části městské části Loučka
ve městě Nový Jičín vzniká moderně pojatá novostavba jednopodlažního rodinného domu s praktickým dispozičním řešením, krytým stáním a přirozeným propojením interiéru s exteriérem. Kompaktní půdorys ve tvaru „L“ odděluje klidovou a společenskou zónu,
zatímco valbová střecha se sklonem 25° doplňuje harmonický a zároveň nadčasový vzhled domu.
Hlavní vstup je situován
na severovýchodní fasádu domu a vede
do zádveří s přístupem do technické místnosti. Středová chodba dále zpřístupňuje ložnici, pokoj, koupelnu s WC
a zároveň ústí do otevřeného obytného prostoru, který propojuje kuchyň, jídelnu
a obývací část. Z obývací části se
HS portálem vychází přímo na terasu,
která je kryta bioklimatickou pergolou, čímž vzniká ideální prostor pro relaxaci
i venkovní stolování.
Stavební řešení stavby vychází
z pórobetonových tvárnic s zateplením EPS šedým polystyrenem o tloušťce
240 mm, což zajišťuje nízkou energetickou náročnost objektu. Konstrukce střechy je tvořena vazníkovou soustavou,
která umožňuje efektivní využití vnitřního prostoru bez potřeby vnitřních nosných stěn. Celý objekt je funkčně rozdělen
na technické zázemí, společenskou
a klidovou část, což zajišťuje přehlednost, soukromí i každodenní komfort.
S užitnou plochou 99,5 m², zastavěnou plochou 130,5 m² a předpokládanou obsazeností 2 osob, je tento dům ideálním řešením pro menší domácnost, která hledá kvalitní a funkční bydlení s dostatkem prostoru uvnitř i venku.
Tento projekt v sobě spojuje moderní architekturu, jednoduchost údržby
a příjemné venkovské prostředí, a je tak ideální volbou pro klidné, ale zároveň pohodlné bydlení v dosahu města.
Na rovinatém pozemku o rozloze 1310 m² v klidné části městské části Loučka
ve městě Nový Jičín vzniká moderně pojatá novostavba jednopodlažního rodinného domu s praktickým dispozičním řešením, krytým stáním a přirozeným propojením interiéru s exteriérem. Kompaktní půdorys ve tvaru „L“ odděluje klidovou a společenskou zónu,
zatímco valbová střecha se sklonem 25° doplňuje harmonický a zároveň nadčasový vzhled domu.
Hlavní vstup je situován na severovýchodní fasádu domu a vede do zádveří s přístupem do technické místnosti. Středová chodba dále zpřístupňuje ložnici, pokoj, koupelnu s WC a zároveň ústí do otevřeného obytného prostoru, který propojuje kuchyň, jídelnu a obývací část. Z obývací části se HS portálem vychází přímo na terasu, která je kryta bioklimatickou pergolou, čímž vzniká ideální prostor pro relaxaci
i venkovní stolování.
Stavební řešení stavby vychází z pórobetonových tvárnic s zateplením EPS šedým polystyrenem o tloušťce 240 mm, což zajišťuje nízkou energetickou náročnost objektu. Konstrukce střechy je tvořena vazníkovou soustavou, která umožňuje efektivní využití vnitřního prostoru bez potřeby vnitřních nosných stěn. Celý objekt je funkčně rozdělen na technické zázemí, společenskou a klidovou část, což zajišťuje přehlednost, soukromí i každodenní komfort.
S užitnou plochou 99,5 m², zastavěnou plochou 130,5 m² a předpokládanou obsazeností 2 osob, je tento dům ideálním řešením pro menší domácnost, která hledá kvalitní a funkční bydlení s dostatkem prostoru uvnitř i venku.
Tento projekt v sobě spojuje moderní architekturu, jednoduchost údržby
a příjemné venkovské prostředí, a je tak ideální volbou pro klidné, ale zároveň pohodlné bydlení v dosahu města.
Video průlet:

















