PROJEKT NA MÍRU
Jednopodlažní rodinný dům ve tvaru „T“ s krytým stáním
a zahradním domkem
Moderní bydlení v Lichnově
🏡 Dispozice | 4+kk |
---|---|
🎯 Energetický štítek | B |
📐 Užitná plocha | 114,9 m² |
📏 Zastavěná plocha | 147,5 m² |
🛠️ Projekt | 2024 |
📍 Lokalita | Lichnov |
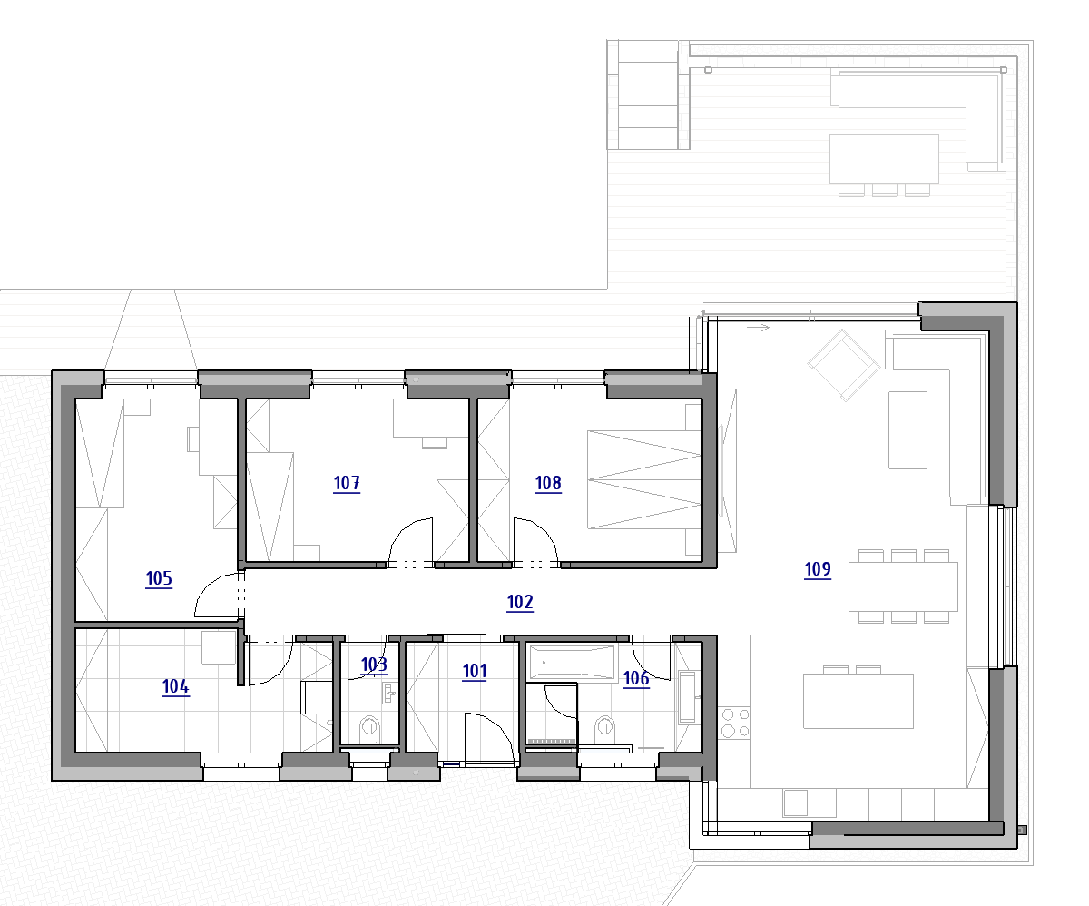
Půdorys 1NP

101-Zádveří | 4,2 m² |
---|---|
102-Chodba | 10,6 m² |
103-WC | 2,0 m² |
104-Technická místnost | 10,3 m² |
105-Pokoj | 12,2 m² |
106-Koupelna | 6,3 m² |
107-Pokoj | 12,3 m² |
108-Ložnice | 12,3 m² |
109-Obývací pokoj + KK | 44,7 m² |
ŽD1-Zahradní domek | 25,6 m² |
Půdorys 1NP

101-Zádveří | 4,2 m² |
---|---|
102-Chodba | 10,6 m² |
103-WC | 2,0 m² |
104-Technická místnost | 10,3 m² |
105-Pokoj | 12,2 m² |
106-Koupelna | 6,3 m² |
107-Pokoj | 12,3 m² |
108-Ložnice | 12,3 m² |
109-Obývací pokoj + KK | 44,7 m² |
ŽD1-Zahradní domek | 25,6 m² |
Na prostorném pozemku o rozloze 1079 m² v klidné části obce Lichnov u Nového Jičína vzniká originálně pojatá novostavba rodinného domu s minimalistickými tvary, přírodními materiály a důrazem na funkční rozvržení. Dům ve tvaru písmene „T“ přirozeně odděluje společenskou a klidovou část, a současně nabízí maximální propojení s exteriérem.
Společenská část domu, orientovaná k jihozápadu, je zastřešena pultovou střechou s viditelným krovem a vysokým otevřeným stropem. Vzdušný interiér doplňuje velkoformátové prosklení s přístupem na terasu, krytou bioklimatickou pergolou. Klidová a technická část domu je zastřešena plochou střechou a zahrnuje ložnici, dětský pokoj, koupelnu, technickou místnost i sklad se samostatným vstupem.
Zastavěná plocha domu činí 147,5 m², užitná plocha 114,9 m² a díky účelnému dispozičnímu řešení poskytuje dům komfortní zázemí pro čtyřčlennou rodinu. Stavební systém je založen na pórobetonových blocích s důkladným zateplením EPS o tloušťce 240 mm. Kombinace ploché a pultové střechy, vnější omítky a svislého dřevěného obkladu vytváří střídmou a zároveň nadčasovou architekturu.
Na severní hranici pozemku je umístěna vedlejší stavba – zahradní domek s krytým stáním, která navazuje na celkový koncept. Dřevěná rámová konstrukce, obložená svislým dřevem, je navržena v nepravidelném tvaru dle linie pozemku. Střecha domku plynule přechází do přístřešku pro parkování vozidla.
Zpevněné plochy, nově řešený sjezd a opěrná stěna ze ztraceného bednění na jihozápadní straně pozemku zajišťují bezproblémový přístup i maximální využití mírně svažité zahrady. Napojení na inženýrské sítě a přípojky domovního vodovodu, kanalizace i NN jsou součástí návrhu.
Tento projekt spojuje moderní, nízkoenergetické bydlení s přírodním charakterem venkova, kvalitním provedením a důrazem na každodenní pohodlí. Ideální pro ty, kdo hledají klidné místo k životu bez kompromisů.
Na prostorném pozemku o rozloze 1079 m² v klidné části obce Lichnov u Nového Jičína vzniká originálně pojatá novostavba rodinného domu s minimalistickými tvary, přírodními materiály a důrazem na funkční rozvržení. Dům ve tvaru písmene „T“ přirozeně odděluje společenskou a klidovou část, a současně nabízí maximální propojení s exteriérem.
Společenská část domu, orientovaná k jihozápadu, je zastřešena pultovou střechou s viditelným krovem a vysokým otevřeným stropem. Vzdušný interiér doplňuje velkoformátové prosklení s přístupem na terasu, krytou bioklimatickou pergolou. Klidová a technická část domu je zastřešena plochou střechou a zahrnuje ložnici, dětský pokoj, koupelnu, technickou místnost i sklad se samostatným vstupem.
Zastavěná plocha domu činí 147,5 m², užitná plocha 114,9 m² a díky účelnému dispozičnímu řešení poskytuje dům komfortní zázemí pro čtyřčlennou rodinu. Stavební systém je založen na pórobetonových blocích s důkladným zateplením EPS o tloušťce 240 mm. Kombinace ploché a pultové střechy, vnější omítky a svislého dřevěného obkladu vytváří střídmou a zároveň nadčasovou architekturu.
Na severní hranici pozemku je umístěna vedlejší stavba – zahradní domek s krytým stáním, která navazuje na celkový koncept. Dřevěná rámová konstrukce, obložená svislým dřevem, je navržena v nepravidelném tvaru dle linie pozemku. Střecha domku plynule přechází do přístřešku pro parkování vozidla.
Zpevněné plochy, nově řešený sjezd a opěrná stěna ze ztraceného bednění na jihozápadní straně pozemku zajišťují bezproblémový přístup i maximální využití mírně svažité zahrady. Napojení na inženýrské sítě a přípojky domovního vodovodu, kanalizace i NN jsou součástí návrhu.
Tento projekt spojuje moderní, nízkoenergetické bydlení s přírodním charakterem venkova, kvalitním provedením a důrazem na každodenní pohodlí. Ideální pro ty, kdo hledají klidné místo k životu bez kompromisů.
Video průlet: