PROJEKT NA MÍRU
Kompletní rekonstrukce a přístavba rodinného domu s garáží a saunou – moderní bydlení v Libhošti
Dvougenerační řešení pro vícečlenou rodinu
| 🏡 Dispozice | 5+kk |
|---|---|
| 🎯 Energetický štítek | A |
| 📐 Užitná plocha | 274,1 m² |
| 📏 Zastavěná plocha | 277,7 m² |
| 🛠️ Projekt | 2025 |
| 📍 Lokalita | Libhošť |
Půdorys 1NP

| 101-Zádveří | 9,5 m² |
|---|---|
| 102-Schodiště/spíž | 5,5 m² |
| 103-WC | 2,2 m² |
| 104-Technická místnost | 9,7 m² |
| 105-Společenský prostor | 48,8 m² |
| 106-Ložnice | 16,6 m² |
| 107-Koupelna | 13,3 m² |
| G01-Garáž | 58,8 m² |
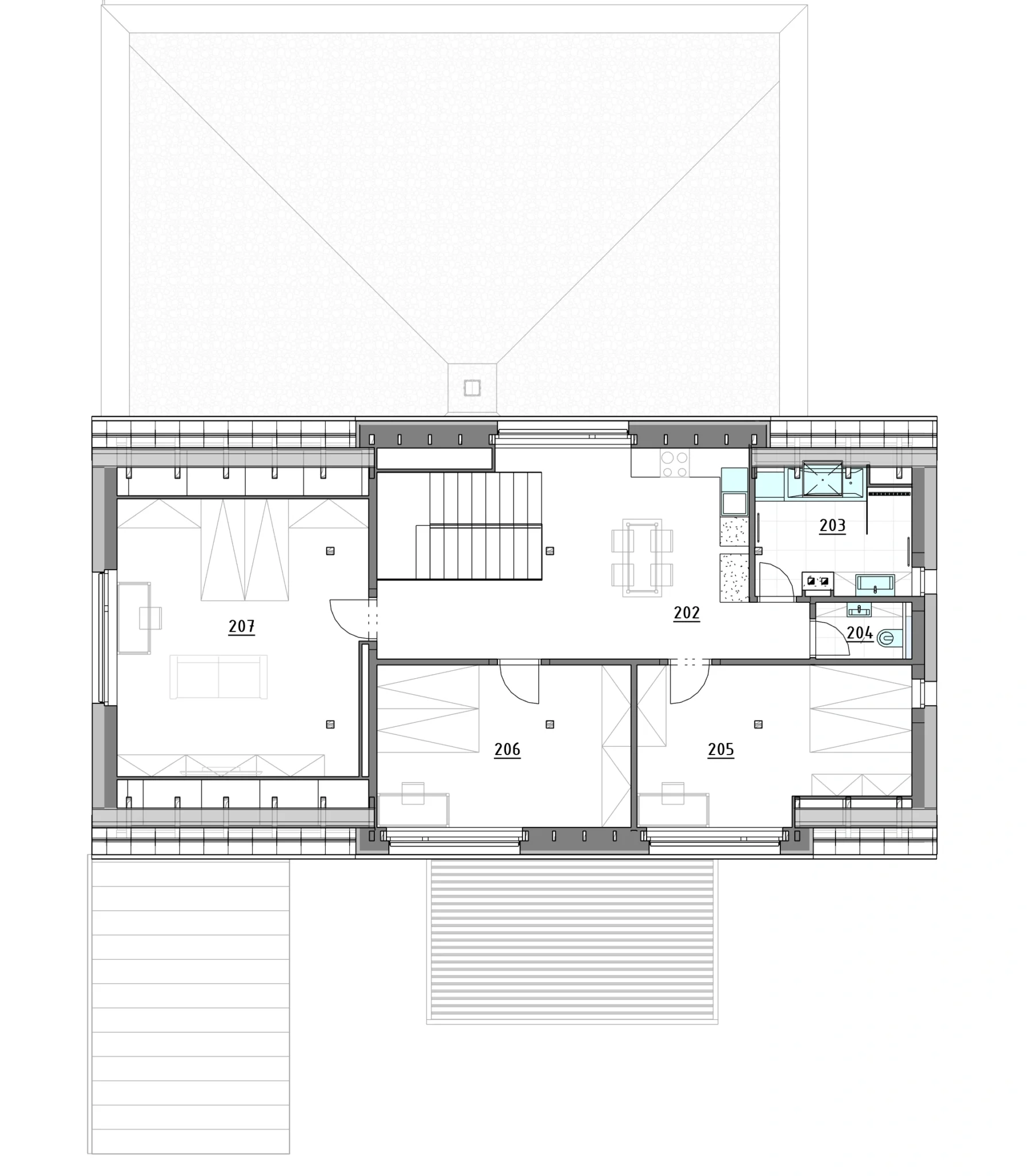
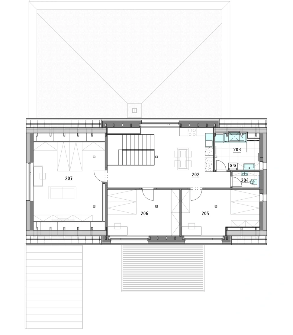
Půdorys podkroví

| 201-Schodiště | 8,0 m² |
|---|---|
| 202-Hala s kuchyní | 25,5 m² |
| 203-Koupelna | 8,3 m² |
| 204-WC | 2,1 m² |
| 205-Pokoj | 17,3 m² |
| 206-Pokoj | 17,5 m² |
| 207-Pokoj | 29,1 m² |
Půdorys 1NP

| 101-Zádveří | 9,5 m² |
|---|---|
| 102-Schodiště/spíž | 5,5 m² |
| 103-WC | 2,2 m² |
| 104-Technická místnost | 9,7 m² |
| 105-Společenský prostor | 48,8 m² |
| 106-Ložnice | 16,6 m² |
| 107-Koupelna | 13,3 m² |
| G01-Garáž | 58,8 m² |
Půdorys podkroví

| 201-Schodiště | 8,0 m² |
|---|---|
| 202-Hala s kuchyní | 25,5 m² |
| 203-Koupelna | 8,3 m² |
| 204-WC | 2,1 m² |
| 205-Pokoj | 17,3 m² |
| 206-Pokoj | 17,5 m² |
| 207-Pokoj | 29,1 m² |
Na klidném a prostorném pozemku v severní části obce Libhošť probíhá komplexní proměna původního jednopodlažního domu na moderní a plnohodnotně využitý dvoupodlažní objekt s obytným podkrovím, novou přístavbou garáže s krytým stáním a saunovým domkem propojeným s hlavní stavbou. Projekt spojuje výhody rekonstrukce s novostavbou – zachovává původní charakter místa a zároveň přináší současný komfort a funkčnost.
Stávající nepodsklepený objekt s půdorysem cca 17 × 8,5 m je zcela přestavěn od stropní konstrukce výš. Vzniká tak nový obytný prostor v podkroví, který je zastřešen klasickou sedlovou střechou se dvěma pultovými vikýři, střešní krytinu tvoří keramická taška. Veškeré stávající přístavby jsou odstraněny, včetně přístavby garáže a pultové části. Současně je realizována nová přístavba garáže s krytým stáním, která zvyšuje komfort každodenního užívání domu. Garáž je řešena jako průjezdná, se dvěma protilehlými sekčními vraty.
V interiéru vzniká nová dispozice s důrazem na plynulé propojení společenské a klidové zóny. Hlavní vstup je nově situován ze severovýchodu, pod krytým stáním. Ze zádveří je přístupná technická místnost, WC, schodiště a otevřený obytný prostor s kuchyňským koutem, jídelnou a obývací částí. V přízemí se dále nachází ložnice se vstupem do koupelny, praktická spíž je chytře umístěna pod schodištěm. V nově vytvořeném obytném podkroví jsou navrženy další obytné místnosti s hygienickým zázemím.
Jako doplňkový prvek navazuje na dům samostatně stojící saunový domek, situovaný tak, aby byl dostupný „suchou nohou“ přímo z koupelny. Jedná se o kompletizovaný výrobek s plochou střechou, který funkčně rozšiřuje relaxační zónu domu.
Konstrukčně je dům zcela modernizován – nově provedené zdivo z pórobetonových tvárnic, nové prefabrikované stropy, ztužující železobetonové věnce, kompletní skladby podlah s podlahovým vytápěním, nové výplně otvorů, povrchové úpravy a moderní zateplovací systém zajišťují dlouhodobou hodnotu a energetickou úspornost. Přístavba garáže a stání je zastřešena plochou střechou se souvrstvím z EPS a přitížením kačírkem, doplněna ocelovou konstrukcí sloupů a nosníků.
S celkovou užitnou plochou přes 270 m², obestavěným prostorem více než 1500 m³ a zastavěnou plochou téměř 280 m² poskytuje projekt velkorysé rodinné bydlení pro 4–5 osob, s dostatečným zázemím, technickým komfortem a důrazem na dlouhodobou udržitelnost.
Na klidném a prostorném pozemku v severní části obce Libhošť probíhá komplexní proměna původního jednopodlažního domu na moderní a plnohodnotně využitý dvoupodlažní objekt s obytným podkrovím, novou přístavbou garáže s krytým stáním a saunovým domkem propojeným s hlavní stavbou. Projekt spojuje výhody rekonstrukce s novostavbou – zachovává původní charakter místa a zároveň přináší současný komfort a funkčnost.
Stávající nepodsklepený objekt s půdorysem cca 17 × 8,5 m je zcela přestavěn od stropní konstrukce výš. Vzniká tak nový obytný prostor v podkroví, který je zastřešen klasickou sedlovou střechou se dvěma pultovými vikýři, střešní krytinu tvoří keramická taška. Veškeré stávající přístavby jsou odstraněny, včetně přístavby garáže a pultové části. Současně je realizována nová přístavba garáže s krytým stáním, která zvyšuje komfort každodenního užívání domu. Garáž je řešena jako průjezdná, se dvěma protilehlými sekčními vraty.
V interiéru vzniká nová dispozice s důrazem na plynulé propojení společenské a klidové zóny. Hlavní vstup je nově situován ze severovýchodu, pod krytým stáním. Ze zádveří je přístupná technická místnost, WC, schodiště a otevřený obytný prostor s kuchyňským koutem, jídelnou a obývací částí. V přízemí se dále nachází ložnice se vstupem do koupelny, praktická spíž je chytře umístěna pod schodištěm. V nově vytvořeném obytném podkroví jsou navrženy další obytné místnosti s hygienickým zázemím.
Jako doplňkový prvek navazuje na dům samostatně stojící saunový domek, situovaný tak, aby byl dostupný „suchou nohou“ přímo z koupelny. Jedná se o kompletizovaný výrobek s plochou střechou, který funkčně rozšiřuje relaxační zónu domu.
Konstrukčně je dům zcela modernizován – nově provedené zdivo z pórobetonových tvárnic, nové prefabrikované stropy, ztužující železobetonové věnce, kompletní skladby podlah s podlahovým vytápěním, nové výplně otvorů, povrchové úpravy a moderní zateplovací systém zajišťují dlouhodobou hodnotu a energetickou úspornost. Přístavba garáže a stání je zastřešena plochou střechou se souvrstvím z EPS a přitížením kačírkem, doplněna ocelovou konstrukcí sloupů a nosníků.
S celkovou užitnou plochou přes 270 m², obestavěným prostorem více než 1500 m³ a zastavěnou plochou téměř 280 m² poskytuje projekt velkorysé rodinné bydlení pro 4–5 osob, s dostatečným zázemím, technickým komfortem a důrazem na dlouhodobou udržitelnost.
Video průlet:

















