PROJEKT NA MÍRU

Moderní rodinný dům se třemi samostatnými bytovými jednotkami

Klidné bydlení v Kopřivnici

🏡 Dispozice3 byty
🎯 Energetický štítekB
🛠️ Projekt2024
📍 LokalitaKopřivnice

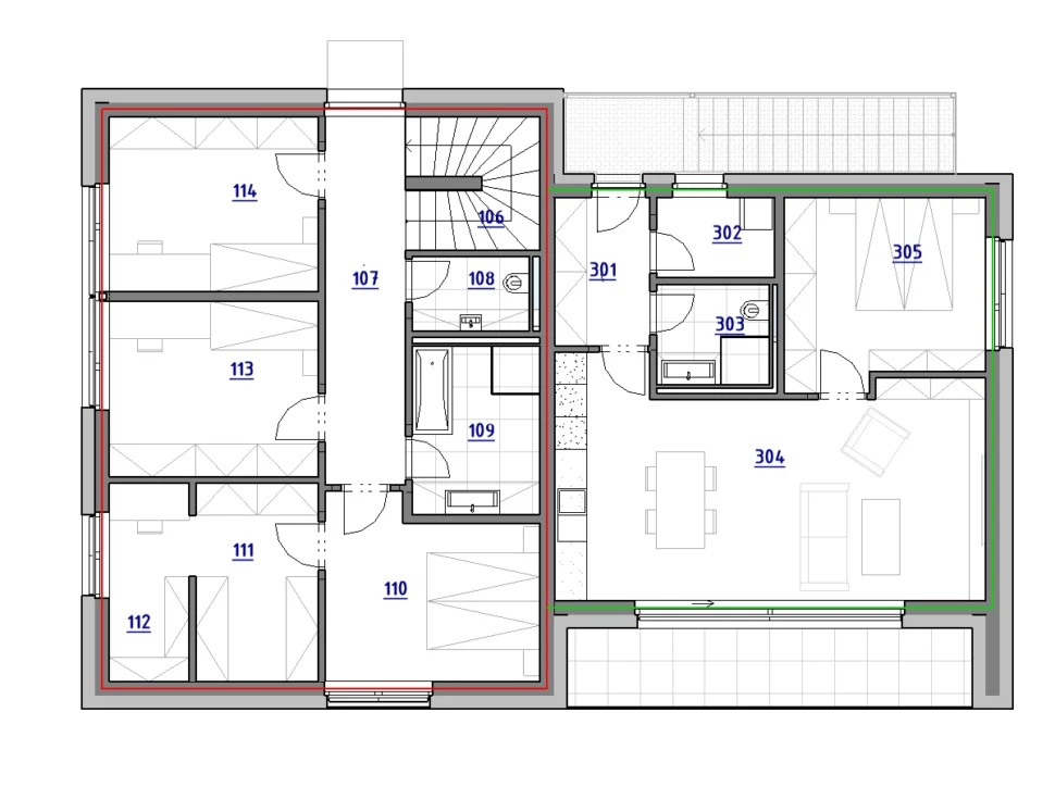
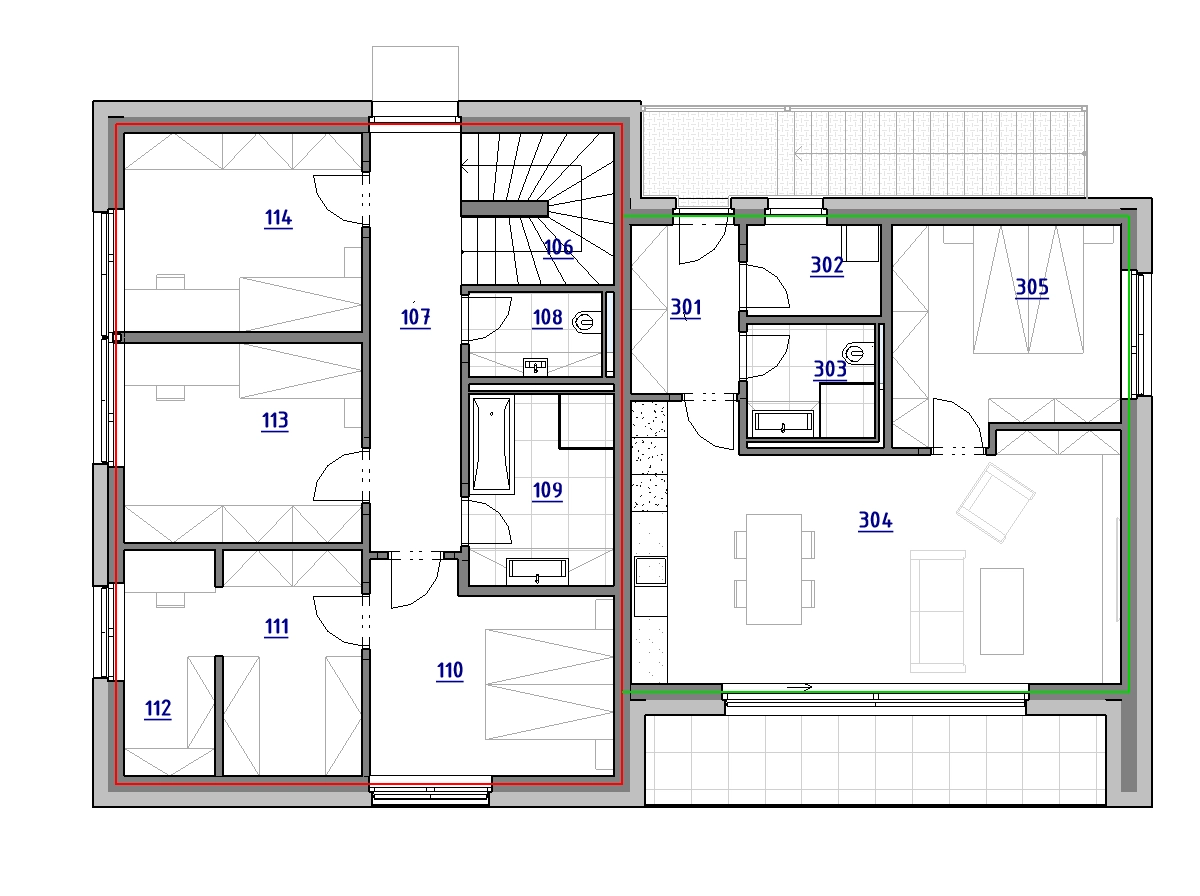
Půdorys 1NP

Půdorys 2NP

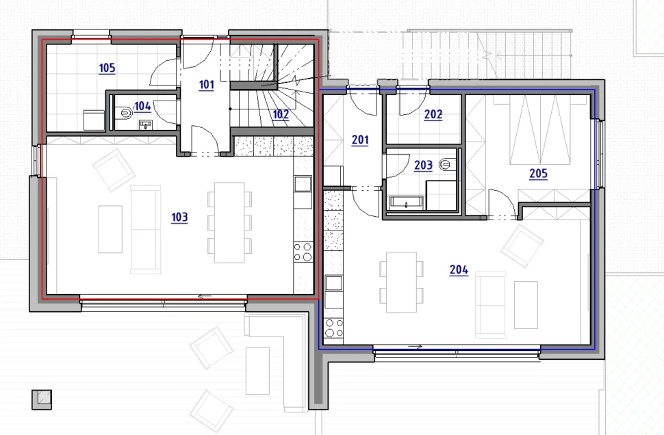
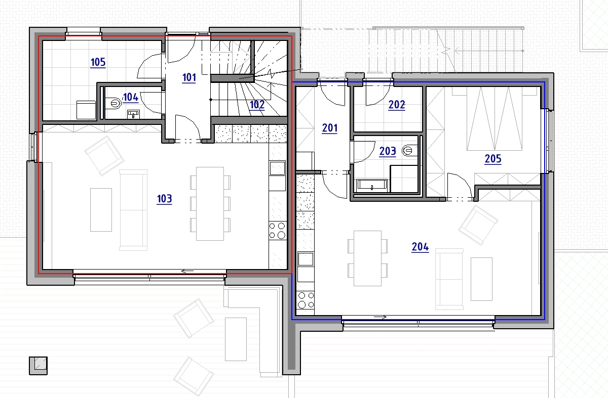
Půdorys 1NP

Půdorys 2NP

Video průlet:

V severní části města Kopřivnice, v lokalitě s rostoucím potenciálem pro moderní rodinné bydlení, vzniká funkčně rozvržená novostavba rodinného domu se třemi samostatnými bytovými jednotkami, ideální pro vícegenerační bydlení nebo kombinaci vlastního a investičního využití.

Dům je navržen jako dvoupodlažní nepodsklepený objekt s plochou střechou, usazený ve střední části rovinatého pozemku o výměře 953 m². Každá jednotka má samostatný vstup, vlastní zázemí a přímý přístup do exteriéru – ať už formou terasy nebo lodžie.

Bytová jednotka č. 1 (135,2 m²)
Hlavní a největší
jednotka rozprostírající se přes obě podlaží. V přízemí se nachází prostorný obývací pokoj s kuchyní a jídelnou, technická místnost a WC. V patře je pak ložnice s pracovnou, dvě dětské pokoje, koupelna a šatna. Z obývacího prostoru je výstup na terasu směřující k zahradě.

Bytová jednotka č. 2 (56,9 m²)
Komfortní přízemní byt se zádveřím, technickou místností, koupelnou a světlým obývacím pokojem s kuchyňským koutem. Z něj je vstup do ložnice a zároveň přímý výstup na terasu. Ideální volba pro pár nebo seniory.

Bytová jednotka č. 3 (56,9 m²)
Dispozičně shodná s jednotkou č. 2, umístěná v patře. Místo terasy zde najdeme lodžii se skleněným zábradlím, která nabízí výhled do zeleně a soukromí.

Dům je založen na základových pasech a vyzděn z pórobetonového zdiva s důkladným zateplením. Fasáda kombinuje moderní omítku s dřevěným obkladem, strop je řešen pomocí železobetonových panelů. Ploché střechy zajišťují moderní vzhled i funkční komfort.

Na pozemku je navržena zpevněná plocha s parkovacími stáními ze zatravňovacích dlaždic a veškerá napojení na inženýrské sítě. Zbývající část parcely tvoří zahrada, která nabízí prostor pro relaxaci, herní prvky či pěstování.

Tento projekt představuje chytré, udržitelné a víceúčelové bydlení s flexibilním využitím – vhodné pro rodiny, investory nebo jako řešení pro spolubydlení s maximálním soukromím každé domácnosti.

 

V severní části města Kopřivnice, v lokalitě s rostoucím potenciálem pro moderní rodinné bydlení, vzniká funkčně rozvržená novostavba rodinného domu se třemi samostatnými bytovými jednotkami, ideální pro vícegenerační bydlení nebo kombinaci vlastního a investičního využití.

Dům je navržen jako dvoupodlažní nepodsklepený objekt s plochou střechou, usazený ve střední části rovinatého pozemku o výměře 953 m². Každá jednotka má samostatný vstup, vlastní zázemí a přímý přístup do exteriéru – ať už formou terasy nebo lodžie.

Bytová jednotka č. 1 (135,2 m²)
Hlavní a největší
jednotka rozprostírající se přes obě podlaží. V přízemí se nachází prostorný obývací pokoj s kuchyní a jídelnou, technická místnost a WC. V patře je pak ložnice s pracovnou, dvě dětské pokoje, koupelna a šatna. Z obývacího prostoru je výstup na terasu směřující k zahradě.

Bytová jednotka č. 2 (56,9 m²)
Komfortní přízemní byt se zádveřím, technickou místností, koupelnou a světlým obývacím pokojem s kuchyňským koutem. Z něj je vstup do ložnice a zároveň přímý výstup na terasu. Ideální volba pro pár nebo seniory.

Bytová jednotka č. 3 (56,9 m²)
Dispozičně shodná s jednotkou č. 2, umístěná v patře. Místo terasy zde najdeme lodžii se skleněným zábradlím, která nabízí výhled do zeleně a soukromí.

Dům je založen na základových pasech a vyzděn z pórobetonového zdiva s důkladným zateplením. Fasáda kombinuje moderní omítku s dřevěným obkladem, strop je řešen pomocí železobetonových panelů. Ploché střechy zajišťují moderní vzhled i funkční komfort.

Na pozemku je navržena zpevněná plocha s parkovacími stáními ze zatravňovacích dlaždic a veškerá napojení na inženýrské sítě. Zbývající část parcely tvoří zahrada, která nabízí prostor pro relaxaci, herní prvky či pěstování.

Tento projekt představuje chytré, udržitelné a víceúčelové bydlení s flexibilním využitím – vhodné pro rodiny, investory nebo jako řešení pro spolubydlení s maximálním soukromím každé domácnosti.

 

Video průlet: