PROJEKT NA MÍRU
Novostavba dvojdomku se šesti bytovými jednotkami v Kopřivnici
Komfortní bydlení v rodinném domě s výhodami funkční architektury a úsporného provozu
| 🏡 Dispozice | 6 bytů |
|---|---|
| 🎯 Energetický štítek | B |
| 🛠️ Projekt | 2024 |
| 📍 Lokalita | Kopřivnice |
V rámci našeho projektu v severní části města Kopřivnice vznikl moderní dvojdomek se šesti samostatnými bytovými jednotkami, které spojují komfort bydlení v rodinném domě s výhodami funkční architektury a úsporného provozu. Každý z dvojdomů obsahuje tři samostatné bytové jednotky, celkem tedy projekt nabízí šest plnohodnotných bytů určených pro jednotlivce i rodiny.
Lokalita
Projekt je situován na parcele č. 1737/1 v katastrálním území Kopřivnice o celkové výměře 953 m². Pozemek je rovinatý, lichoběžníkového tvaru a nachází se v zastavitelném území obce. V těsné blízkosti se nachází stávající zástavba rodinných domů a občanská vybavenost – konkrétně areál ČSAD. Východní orientace pozemku umožňuje přímé napojení na místní komunikaci novým sjezdem.
Architektura a dispozice
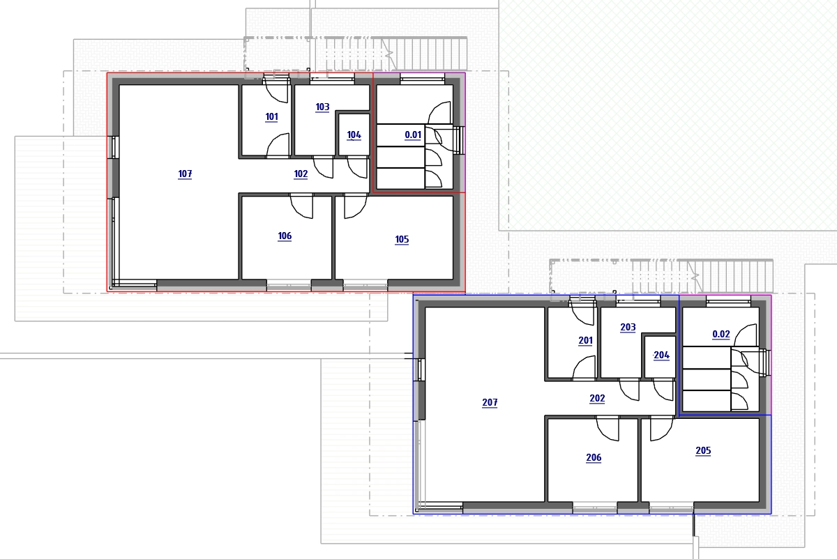
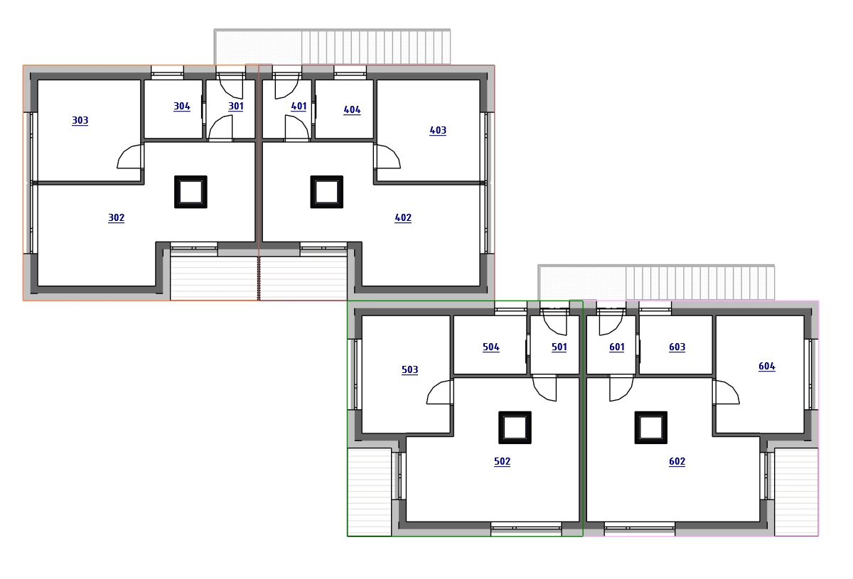
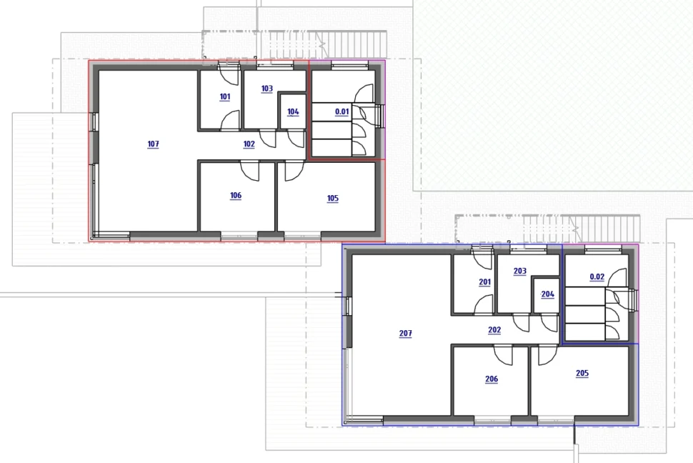
Dvojdomek je navržen jako dvoupodlažní objekt zastřešený plochou střechou. Celá stavba je nepodsklepená a konstrukčně řešena jako zděný objekt se zateplením systémem ETICS. Každý dům obsahuje tři bytové jednotky přístupné samostatnými vstupy – dvě v přízemí, jedna v patře, přičemž horní jednotky jsou dostupné po venkovním schodišti.
Dispozice jednotlivých bytů je navržena následovně:
Přízemní jednotky mají vlastní zádveří, technickou místnost, koupelnu s WC, obytný prostor s kuchyňským koutem a přímý vstup na terasu. Součástí je jedna nebo dvě ložnice.
Horní jednotky jsou přístupné po samostatném schodišti a disponují centrální chodbou, dvěma ložnicemi, koupelnou, samostatným WC a rozlehlým obývacím pokojem s kuchyňským koutem. V každé z nich je zajištěn přístup na lodžii.
Díky rozvržení bytů je zajištěno soukromí každé domácnosti a současně jednoduchá orientace v objektu.
Vnější úpravy a technické řešení
Součástí projektu jsou zpevněné plochy ze zámkové dlažby, oplocení a kompletní napojení na inženýrské sítě – vodovod, kanalizaci, elektro. Na pozemku je navrženo několik parkovacích stání ze zatravňovacích dlaždic.
Shrnutí kapacit
Počet bytových jednotek: 6 (3 v každém dvojdomě)
Dispozice jednotek: kombinace 2+KK, 3+KK
Zastavěná plocha celkem: cca 2 x 198,4 m²
Obestavěný prostor (dvojdomek): cca 2 x 1380,9 m³
Předpokládaná obsazenost: 6 rodin (např. 4 + 2 + 2 osoby / dům)
V rámci našeho projektu v severní části města Kopřivnice vznikl moderní dvojdomek se šesti samostatnými bytovými jednotkami, které spojují komfort bydlení v rodinném domě s výhodami funkční architektury a úsporného provozu. Každý z dvojdomů obsahuje tři samostatné bytové jednotky, celkem tedy projekt nabízí šest plnohodnotných bytů určených pro jednotlivce i rodiny.
Lokalita
Projekt je situován na parcele č. 1737/1 v katastrálním území Kopřivnice o celkové výměře 953 m². Pozemek je rovinatý, lichoběžníkového tvaru a nachází se v zastavitelném území obce. V těsné blízkosti se nachází stávající zástavba rodinných domů a občanská vybavenost – konkrétně areál ČSAD. Východní orientace pozemku umožňuje přímé napojení na místní komunikaci novým sjezdem.
Architektura a dispozice
Dvojdomek je navržen jako dvoupodlažní objekt zastřešený plochou střechou. Celá stavba je nepodsklepená a konstrukčně řešena jako zděný objekt se zateplením systémem ETICS. Každý dům obsahuje tři bytové jednotky přístupné samostatnými vstupy – dvě v přízemí, jedna v patře, přičemž horní jednotky jsou dostupné po venkovním schodišti.
Dispozice jednotlivých bytů je navržena následovně:
Přízemní jednotky mají vlastní zádveří, technickou místnost, koupelnu s WC, obytný prostor s kuchyňským koutem a přímý vstup na terasu. Součástí je jedna nebo dvě ložnice.
Horní jednotky jsou přístupné po samostatném schodišti a disponují centrální chodbou, dvěma ložnicemi, koupelnou, samostatným WC a rozlehlým obývacím pokojem s kuchyňským koutem. V každé z nich je zajištěn přístup na lodžii.
Díky rozvržení bytů je zajištěno soukromí každé domácnosti a současně jednoduchá orientace v objektu.
Vnější úpravy a technické řešení
Součástí projektu jsou zpevněné plochy ze zámkové dlažby, oplocení a kompletní napojení na inženýrské sítě – vodovod, kanalizaci, elektro. Na pozemku je navrženo několik parkovacích stání ze zatravňovacích dlaždic.
Shrnutí kapacit
Počet bytových jednotek: 6 (3 v každém dvojdomě)
Dispozice jednotek: kombinace 2+KK, 3+KK
Zastavěná plocha celkem: cca 2 x 198,4 m²
Obestavěný prostor (dvojdomek): cca 2 x 1380,9 m³
Předpokládaná obsazenost: 6 rodin (např. 4 + 2 + 2 osoby / dům)
Video průlet:





















