PROJEKT NA MÍRU
Rekonstrukce rodinného domu s přístavbou schodiště
a balkonu
moderní bydlení ve dvou patrech
| 🏡 Dispozice | 5+kk |
|---|---|
| 🎯 Energetický štítek | B |
| 📐 Užitná plocha | 137,4 m² |
| 📏 Zastavěná plocha | 175,5 m² |
| 🛠️ Projekt | 2023 |
| 📍 Lokalita | Suchdol n. O. |
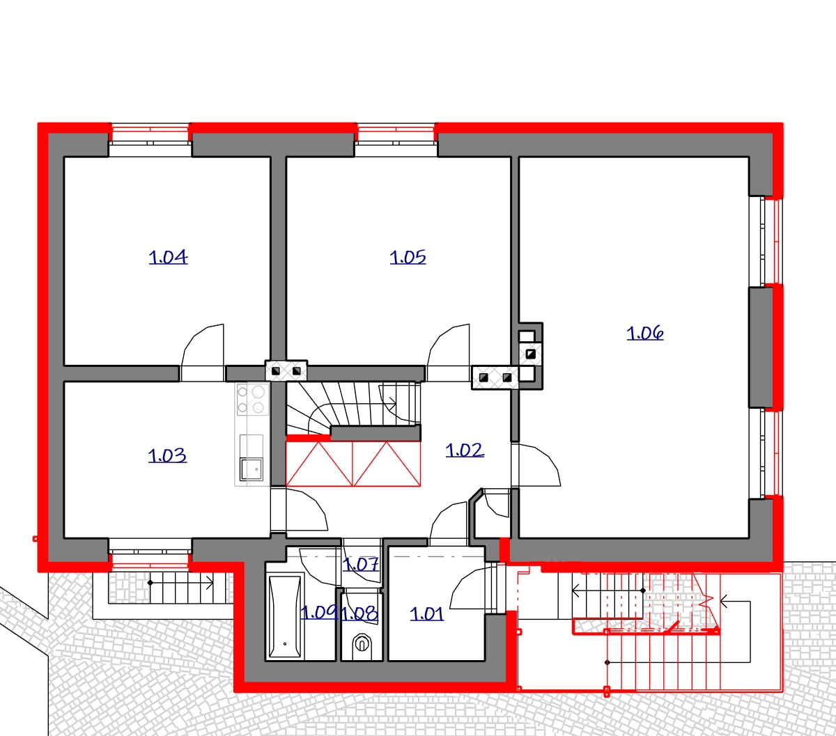
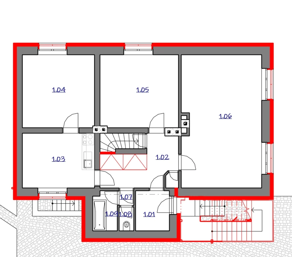
Půdorys 1NP

| 101-Zádveří | 4,1 m² |
|---|---|
| 102-Vstupní hala | 11,4 m² |
| 103-Kuchyň | 11,9 m² |
| 104-Ložnice | 15,8 m² |
| 105-Pokoj | 17,2 m² |
| 106-Obývací pokoj | 31,8 m² |
| 107-Předsíňka | 0,6 m² |
| 108-WC | 1,0 m² |
| 109-Koupelna | 2,9 m² |
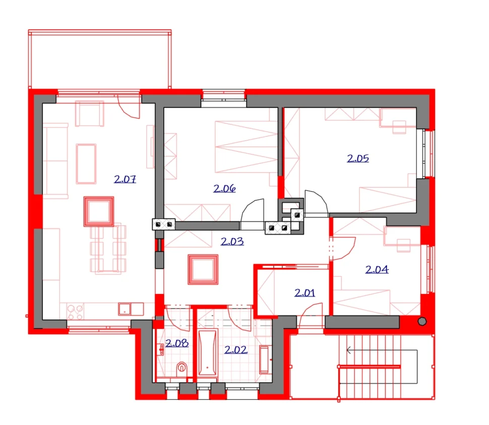
Půdorys 2NP

| 201-Zádveří | 4,1 m² |
|---|---|
| 202-Koupelna + WC | 6,5 m² |
| 203-Vstupní hala | 11,6 m² |
| 204-Pokoj | 10,3 m² |
| 205-Pokoj | 16,8 m² |
| 206-Ložnice | 16,0 m² |
| 207-Obývací pokoj + KK | 30,0 m² |
| 208-WC | 3,0 m² |
Půdorys 1NP

| 101-Zádveří | 4,1 m² |
|---|---|
| 102-Vstupní hala | 11,4 m² |
| 103-Kuchyň | 11,9 m² |
| 104-Ložnice | 15,8 m² |
| 105-Pokoj | 17,2 m² |
| 106-Obývací pokoj | 31,8 m² |
| 107-Předsíňka | 0,6 m² |
| 108-WC | 1,0 m² |
| 109-Koupelna | 2,9 m² |
Půdorys 2NP

| 201-Zádveří | 4,1 m² |
|---|---|
| 202-Koupelna + WC | 6,5 m² |
| 203-Vstupní hala | 11,6 m² |
| 204-Pokoj | 10,3 m² |
| 205-Pokoj | 16,8 m² |
| 206-Ložnice | 16,0 m² |
| 207-Obývací pokoj + KK | 30,0 m² |
| 208-WC | 3,0 m² |
Stávající rodinný dům prochází citlivou rekonstrukcí, která kombinuje energetickou úspornost s praktickými úpravami vnitřních dispozic i venkovních konstrukcí. Cílem projektu je proměnit dům na moderní dvougenerační bydlení, které bude plně odpovídat dnešním nárokům na komfort, funkčnost i estetiku.
Dům je samostatně stojící, dvoupodlažní a celý podsklepený, zastřešený plochou střechou. Objekt je situován ve středu parcely č. 1202, kde zůstává i po rekonstrukci. Nově bude objekt doplněn o dvě konstrukčně výrazné přístavby – ocelové schodiště v jihozápadním rohu a prosklený balkon na severovýchodní straně.
Jednou z klíčových motivací rekonstrukce bylo snížení energetické náročnosti domu, která byla potvrzena stavebně-technickým průzkumem. Proto bude provedeno komplexní zateplení obvodového a střešního pláště, včetně nové skladby střechy, instalace střešních oken a moderní fasády kombinující omítku a perforovaný plech.
Díky stavebním úpravám vzniknou v domě dvě samostatné bytové jednotky – jedna v přízemí pro dvoučlennou domácnost a druhá v druhém nadzemním podlaží pro čtyřčlennou rodinu. Vstup do horního bytu bude řešen přes nové venkovní schodiště, čímž se zvýší soukromí obou domácností. V interiéru 2NP vznikne nová koupelna s WC, doplněná otevřeným obytným prostorem s kuchyní a jídelnou orientovanou na sever. Dispozice přízemí zůstává zachována, pouze dojde k uzavření stávajícího schodiště a jeho praktickému využití formou úložného prostoru.
Technické řešení je založeno na kombinaci ocelových konstrukcí pro přístavby, zateplovacím systému ETICS, nových příčkách z pórobetonu a kvalitních izolačních oknech. Dům tak získá nejen novou tvář, ale i lepší parametry pro dlouhodobé a pohodlné bydlení.
Stávající rodinný dům prochází citlivou rekonstrukcí, která kombinuje energetickou úspornost s praktickými úpravami vnitřních dispozic i venkovních konstrukcí. Cílem projektu je proměnit dům na moderní dvougenerační bydlení, které bude plně odpovídat dnešním nárokům na komfort, funkčnost i estetiku.
Dům je samostatně stojící, dvoupodlažní a celý podsklepený, zastřešený plochou střechou. Objekt je situován ve středu parcely č. 1202, kde zůstává i po rekonstrukci. Nově bude objekt doplněn o dvě konstrukčně výrazné přístavby – ocelové schodiště v jihozápadním rohu a prosklený balkon na severovýchodní straně.
Jednou z klíčových motivací rekonstrukce bylo snížení energetické náročnosti domu, která byla potvrzena stavebně-technickým průzkumem. Proto bude provedeno komplexní zateplení obvodového a střešního pláště, včetně nové skladby střechy, instalace střešních oken a moderní fasády kombinující omítku a perforovaný plech.
Díky stavebním úpravám vzniknou v domě dvě samostatné bytové jednotky – jedna v přízemí pro dvoučlennou domácnost a druhá v druhém nadzemním podlaží pro čtyřčlennou rodinu. Vstup do horního bytu bude řešen přes nové venkovní schodiště, čímž se zvýší soukromí obou domácností. V interiéru 2NP vznikne nová koupelna s WC, doplněná otevřeným obytným prostorem s kuchyní a jídelnou orientovanou na sever. Dispozice přízemí zůstává zachována, pouze dojde k uzavření stávajícího schodiště a jeho praktickému využití formou úložného prostoru.
Technické řešení je založeno na kombinaci ocelových konstrukcí pro přístavby, zateplovacím systému ETICS, nových příčkách z pórobetonu a kvalitních izolačních oknech. Dům tak získá nejen novou tvář, ale i lepší parametry pro dlouhodobé a pohodlné bydlení.
Video průlet:

















