PROJEKT NA MÍRU
Moderní dvoupodlažní dům v Huštěnovicích
Promyšlené bydlení pro čtyřčlennou rodinu
| 🏡 Dispozice | 4+kk |
|---|---|
| 🎯 Energetický štítek | B |
| 📐 Užitná plocha | 178,8 m² |
| 📏 Zastavěná plocha | 159,8 m² |
| 🛠️ Projekt | 2023 |
| 📍 Lokalita | Huštěnovice |
Půdorys 1NP

| 101-Zádveří | 8,2 m² |
|---|---|
| 102-Koupelna + WC | 3,2 m² |
| 103-Technická místnost | 7,2 m² |
| 104-Chodba | 3,7 m² |
| 105-Pracovna / pokoj pro hosty | 9,7 m² |
| 106-Obývací pokoj s jídelnou | 45,0 m² |
| 107-Spiž | 2,2 m² |
| 108-Schodiště | 3,8 m² |
| 109-Garáž | 28,1 m² |
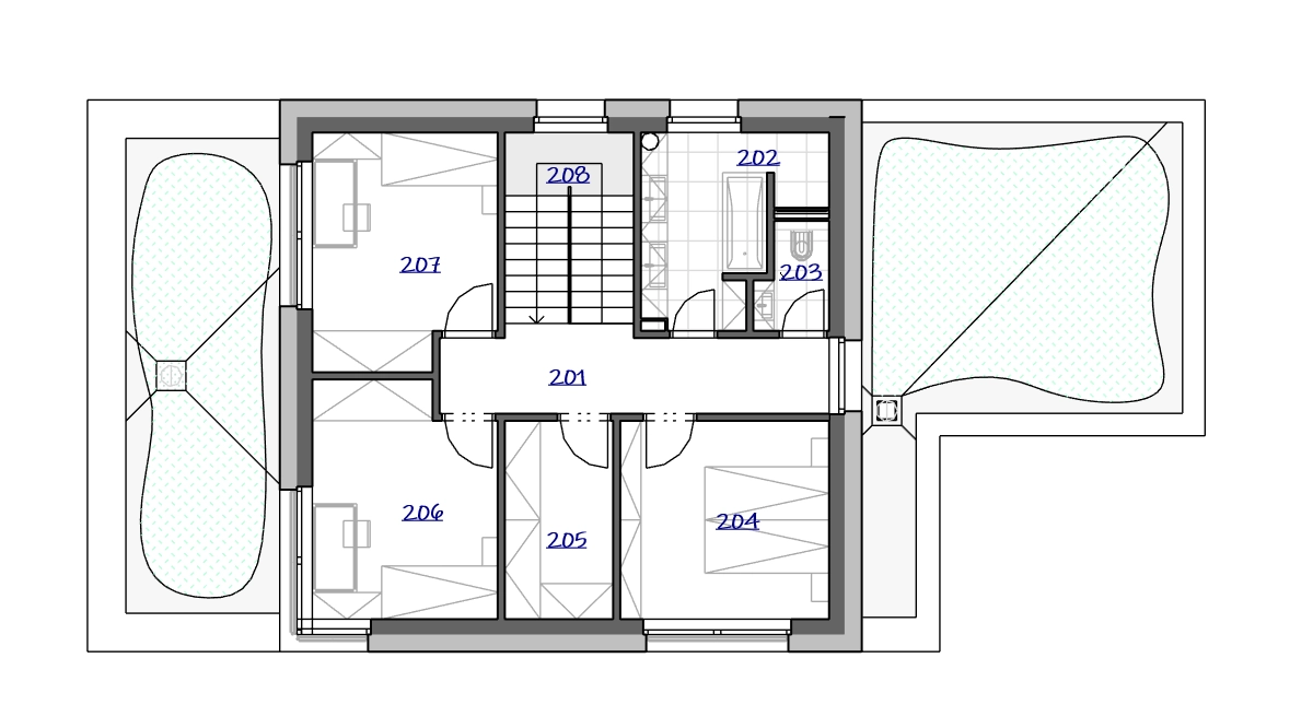
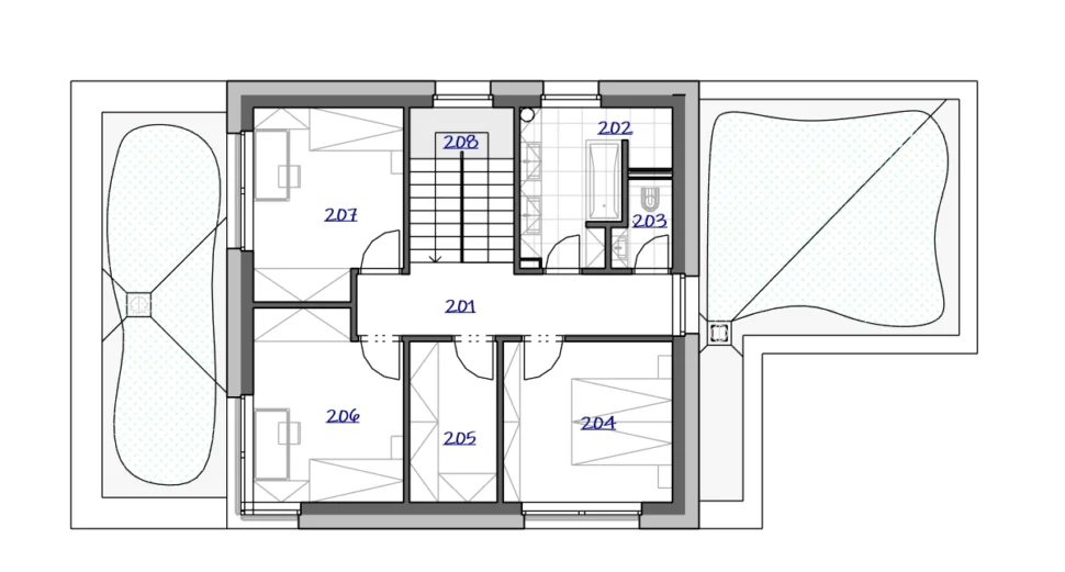
Půdorys 2NP

| 201-Chodba | 8,4 m² |
|---|---|
| 202-Koupelna | 7,9 m² |
| 203-WC | 2,0 m² |
| 204-Ložnice | 11,8 m² |
| 205-Šatna | 6,1 m² |
| 206-Pokoj | 11,9 m² |
| 207-Pokoj | 11,9 m² |
| 208-Schodiště | 7,6 m² |
Půdorys 1NP

| 101-Zádveří | 8,2 m² |
|---|---|
| 102-Koupelna + WC | 3,2 m² |
| 103-Technická místnost | 7,2 m² |
| 104-Chodba | 3,7 m² |
| 105-Pracovna / pokoj pro hosty | 9,7 m² |
| 106-Obývací pokoj s jídelnou | 45,0 m² |
| 107-Spiž | 2,2 m² |
| 108-Schodiště | 3,8 m² |
| 109-Garáž | 28,1 m² |
Půdorys 2NP

| 201-Chodba | 8,4 m² |
|---|---|
| 202-Koupelna | 7,9 m² |
| 203-WC | 2,0 m² |
| 204-Ložnice | 11,8 m² |
| 205-Šatna | 6,1 m² |
| 206-Pokoj | 11,9 m² |
| 207-Pokoj | 11,9 m² |
| 208-Schodiště | 7,6 m² |
Na klidném a rovinném pozemku v západní části obce Huštěnovice vzniká novostavba dvoupodlažního rodinného domu s důrazem na čisté linie, praktické řešení dispozic a propojení moderních stavebních prvků s nadčasovou architekturou. Projekt zahrnuje i realizaci oplocení, zpevněných ploch a kompletní napojení na inženýrské sítě.
Rodinný dům je navržen jako samostatně stojící objekt s plochou střechou, jehož hlavní hmota má obdélníkový půdorys a doplňuje ji vedlejší jednopodlažní část s garáží a vegetační střechou. Stavba je situována ve střední části parcely o výměře 684 m², s příjezdem ze severovýchodu a jižně orientovanou zahradou.
Dispozice domu je plně přizpůsobena potřebám čtyřčlenné rodiny. V přízemí se nachází vstupní zádveří s přímým přístupem do obytné části i do garáže. Obytnou zónu tvoří prostorný obývací pokoj s jídelnou a kuchyňským koutem, který je otevřen směrem na jihozápadní terasu a zahradu. Nechybí ani pracovna, koupelna, technická místnost, spíž a praktické využití prostoru pod schodištěm.
Ve druhém podlaží se nachází dva dětské pokoje, ložnice, koupelna, samostatné WC a šatna přístupná z chodby. Celková užitná plocha domu činí 178,8 m², zastavěná plocha pak 159,8 m². Dům je nepodsklepený, s celkovou výškou 6,6 m.
Konstrukčně je dům řešen z pórobetonových tvárnic s důrazem na energetickou úspornost. Fasáda je kombinací zateplovacího systému ETICS a dřevěného obkladu, doplněná plastovými a hliníkovými okny s izolačním trojsklem. Střešní plášť je navržen jako plochá střecha s hydroizolační vrstvou z PVC fólie, u vedlejší hmoty je použita zelená vegetační střecha.
Tento dům spojuje moderní vzhled, vysoký uživatelský komfort a funkčně navržený interiér – ideální řešení pro moderní rodinný život v příjemném prostředí.
Na klidném a rovinném pozemku v západní části obce Huštěnovice vzniká novostavba dvoupodlažního rodinného domu s důrazem na čisté linie, praktické řešení dispozic a propojení moderních stavebních prvků s nadčasovou architekturou. Projekt zahrnuje i realizaci oplocení, zpevněných ploch a kompletní napojení na inženýrské sítě.
Rodinný dům je navržen jako samostatně stojící objekt s plochou střechou, jehož hlavní hmota má obdélníkový půdorys a doplňuje ji vedlejší jednopodlažní část s garáží a vegetační střechou. Stavba je situována ve střední části parcely o výměře 684 m², s příjezdem ze severovýchodu a jižně orientovanou zahradou.
Dispozice domu je plně přizpůsobena potřebám čtyřčlenné rodiny. V přízemí se nachází vstupní zádveří s přímým přístupem do obytné části i do garáže. Obytnou zónu tvoří prostorný obývací pokoj s jídelnou a kuchyňským koutem, který je otevřen směrem na jihozápadní terasu a zahradu. Nechybí ani pracovna, koupelna, technická místnost, spíž a praktické využití prostoru pod schodištěm.
Ve druhém podlaží se nachází dva dětské pokoje, ložnice, koupelna, samostatné WC a šatna přístupná z chodby. Celková užitná plocha domu činí 178,8 m², zastavěná plocha pak 159,8 m². Dům je nepodsklepený, s celkovou výškou 6,6 m.
Konstrukčně je dům řešen z pórobetonových tvárnic s důrazem na energetickou úspornost. Fasáda je kombinací zateplovacího systému ETICS a dřevěného obkladu, doplněná plastovými a hliníkovými okny s izolačním trojsklem. Střešní plášť je navržen jako plochá střecha s hydroizolační vrstvou z PVC fólie, u vedlejší hmoty je použita zelená vegetační střecha.
Tento dům spojuje moderní vzhled, vysoký uživatelský komfort a funkčně navržený interiér – ideální řešení pro moderní rodinný život v příjemném prostředí.
Video průlet:

















