PROJEKT NA MÍRU
Komplexní rekonstrukce rodinného domu s moderní přístavbou
a novým krytým stáním
Spojení tradice a současnosti
| 🏡 Dispozice | 4+kk |
|---|---|
| 🎯 Energetický štítek | B |
| 📐 Užitná plocha | 283,9 m² |
| 📏 Zastavěná plocha | |
| 🛠️ Projekt | 2024 |
| 📍 Lokalita | Hukvaldy |
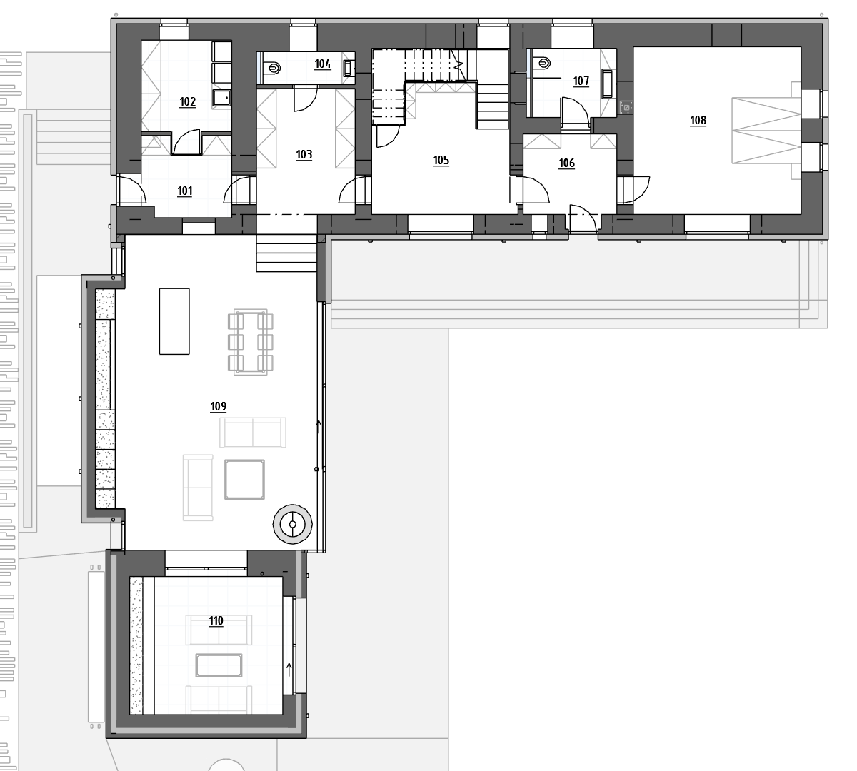
Půdorys 1NP

| 101-Zádveří | 6,2 m² |
|---|---|
| 102-Technická místnost | 8,3 m² |
| 103-Chodba | 11,5 m² |
| 104-WC | 2,8 m² |
| 105-Chodba + schodiště | 16,5 m² |
| 106-Chodba | 7,0 m² |
| 107-Koupelna | 5,3 m² |
| 108-Ložnice | 26,0 m² |
| 109-Obývací pokoj + KK s jídelnou | 62,0 m² |
| 110-Zahradní domek | 19,5 m² |
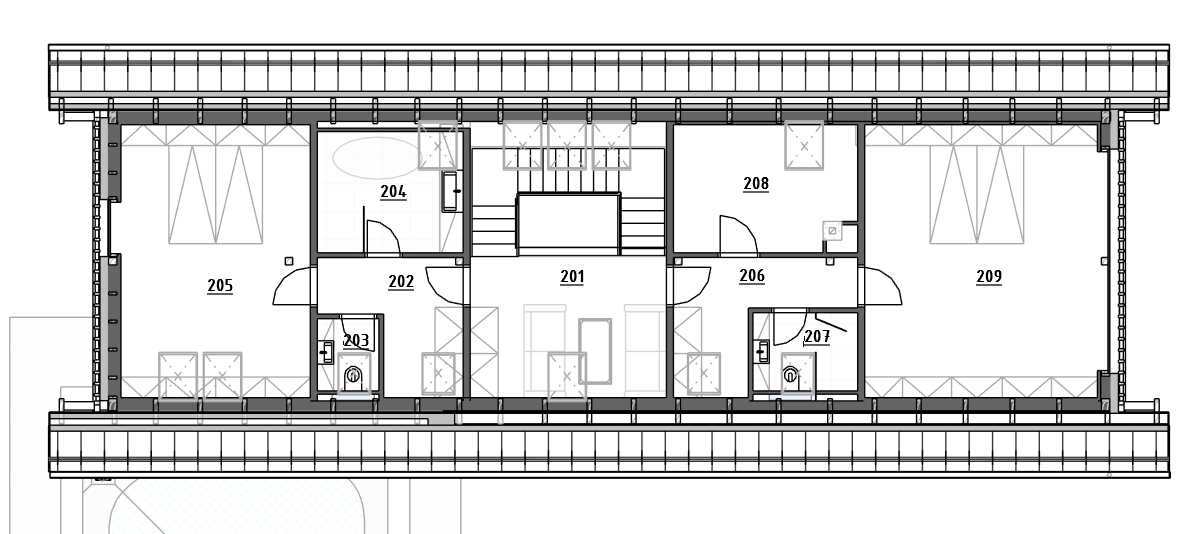
Půdorys 2NP

| 201-Schodiště, hala | 24,8 m² |
|---|---|
| 202-Chodba | 6,5 m² |
| 203-WC | 2,0 m² |
| 204-Koupelna | 7,8 m² |
| 205-Pokoj | 23,1 m² |
| 206-Chodba | 7,0 m² |
| 207-WC | 3,5 m² |
| 208-Pokoj | 10,5 m² |
| 209-Ložnice | 28,8 m² |
Půdorys 1NP

| 101-Zádveří | 6,2 m² |
|---|---|
| 102-Technická místnost | 8,3 m² |
| 103-Chodba | 11,5 m² |
| 104-WC | 2,8 m² |
| 105-Chodba + schodiště | 16,5 m² |
| 106-Chodba | 7,0 m² |
| 107-Koupelna | 5,3 m² |
| 108-Ložnice | 26,0 m² |
| 109-Obývací pokoj + KK s jídelnou | 62,0 m² |
| 110-Zahradní domek | 19,5 m² |
Půdorys 2NP

| 201-Schodiště, hala | 24,8 m² |
|---|---|
| 202-Chodba | 6,5 m² |
| 203-WC | 2,0 m² |
| 204-Koupelna | 7,8 m² |
| 205-Pokoj | 23,1 m² |
| 206-Chodba | 7,0 m² |
| 207-WC | 3,5 m² |
| 208-Pokoj | 10,5 m² |
| 209-Ložnice | 28,8 m² |
V jednom z tradičních obytných sektorů vzniká komplexní proměna původního rodinného domu a jeho hospodářského zázemí, která citlivě navazuje na původní objemy a současně přináší svěží architektonický výraz. Projekt zahrnuje rekonstrukci hlavního domu, znovupostavení stodoly ve formě zahradního domku, moderní přístavbu
s plochou vegetační střechou a výstavbu nového objektu krytého stání se skladem a garáží.
Stávající rodinný dům se sedlovou střechou projde rozsáhlou obnovou – bude kompletně odstraněna střešní konstrukce včetně trámového stropu, vybourány vnitřní příčky, podlahy i výplně otvorů. Zůstávají pouze nosné a obvodové zdi, na které navazuje nová nosná konstrukce střechy, zateplení a zcela přepracovaný interiér. Užitná plocha objektu činí 283,9 m² a nový dům poskytne komfortní bydlení čtyřčlenné rodině ve dvou plnohodnotných podlažích.
Zásadním momentem projektu je propojení rekonstruovaného domu
s nově postaveným zahradním domkem (původní stodola) pomocí přístavby
s plochou vegetační střechou, která je architektonicky navržena jako kontrastní, moderní prvek mezi dvěma tradičně pojatými hmotami. Konstrukčně se jedná
o kombinaci železobetonu a pórobetonu, střecha je monolitická deska s atikami
a vegetačním souvrstvím.
Zahradní domek s půdorysnými rozměry cca 5,75 × 5,16 m je nově postaven na místě původní stodoly, z nových materiálů
s přizdívkou z přírodního kamene
a zastřešený sedlovou střechou
z falcovaného plechu, čímž se vzhledově vrací k původnímu charakteru stavby.
Součástí proměny je také výstavba nového krytého stání se zastavěnou plochou
71,1 m². Objekt je rozdělen na tři samostatné části – otevřené kryté stání, garáž se sekčními vraty a samostatný uzavíratelný sklad. Konstrukce
ze ztraceného bednění a kamenné přizdívky, krov z dřevěných vazníků
a plnohodnotné využití prostoru
pod střechou přidávají na praktičnosti
a odolnosti.
Tento projekt představuje dokonalý příklad propojení historie a současnosti. Respektuje původní strukturu místa, přičemž nabízí zcela nový standard bydlení – s kvalitní architekturou, důrazem na detail a přirozené začlenění do okolní zástavby.
V jednom z tradičních obytných sektorů vzniká komplexní proměna původního rodinného domu a jeho hospodářského zázemí, která citlivě navazuje na původní objemy a současně přináší svěží architektonický výraz. Projekt zahrnuje rekonstrukci hlavního domu, znovupostavení stodoly ve formě zahradního domku, moderní přístavbu s plochou vegetační střechou a výstavbu nového objektu krytého stání
se skladem a garáží.
Stávající rodinný dům se sedlovou střechou projde rozsáhlou obnovou – bude kompletně odstraněna střešní konstrukce včetně trámového stropu, vybourány vnitřní příčky, podlahy i výplně otvorů. Zůstávají pouze nosné a obvodové zdi, na které navazuje nová nosná konstrukce střechy, zateplení
a zcela přepracovaný interiér. Užitná plocha objektu činí 283,9 m² a nový dům poskytne komfortní bydlení čtyřčlenné rodině ve dvou plnohodnotných podlažích.
Zásadním momentem projektu je propojení rekonstruovaného domu s nově postaveným zahradním domkem (původní stodola) pomocí přístavby s plochou vegetační střechou, která je architektonicky navržena jako kontrastní, moderní prvek mezi dvěma tradičně pojatými hmotami. Konstrukčně se jedná
o kombinaci železobetonu a pórobetonu, střecha je monolitická deska s atikami a vegetačním souvrstvím.
Zahradní domek s půdorysnými rozměry cca 5,75 × 5,16 m je nově postaven na místě původní stodoly,
z nových materiálů s přizdívkou z přírodního kamene
a zastřešený sedlovou střechou z falcovaného plechu, čímž se vzhledově vrací k původnímu charakteru stavby.
Součástí proměny je také výstavba nového krytého stání se zastavěnou plochou 71,1 m². Objekt je rozdělen na tři samostatné části – otevřené kryté stání, garáž se sekčními vraty a samostatný uzavíratelný sklad. Konstrukce ze ztraceného bednění a kamenné přizdívky, krov z dřevěných vazníků a plnohodnotné využití prostoru pod střechou přidávají na praktičnosti a odolnosti.
Tento projekt představuje dokonalý příklad propojení historie a současnosti. Respektuje původní strukturu místa, přičemž nabízí zcela nový standard bydlení – s kvalitní architekturou, důrazem na detail
a přirozené začlenění do okolní zástavby.
Video průlet:

















