PROJEKT NA MÍRU
Novostavby 4 rodinných domů v Hukovicích
Moderní bydlení v harmonickém souboru
| 🏡 Dispozice | 4+kk |
|---|---|
| 🎯 Energetický štítek | B |
| 📐 Užitná plocha | 141,4 m² |
| 📏 Zastavěná plocha | 92,16 m² |
| 🛠️ Projekt | 2024 |
| 📍 Lokalita | Hukovice |
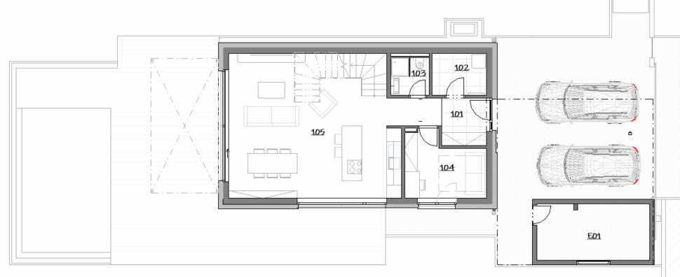
Půdorys 1NP

| 101-Zádveří | 4,3 m² |
|---|---|
| 102-Technická místnost | 4,6 m² |
| 103-Koupelna | 2,9 m² |
| 104-Pracovna / pokoj pro hosty | 9,3 m² |
| 105-Obývací pokoj + KK | 50,6 m² |
| E01-Zahradní domek | 12,9 m² |
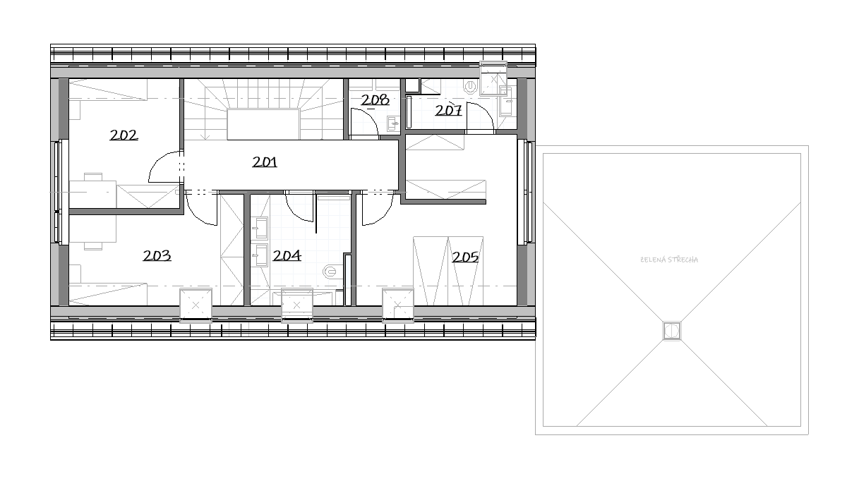
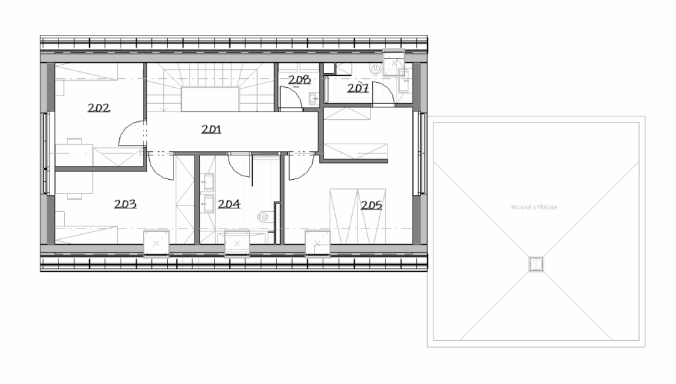
Půdorys 2NP

| 201-Chodba + schodiště | 14,8 m² |
|---|---|
| 202-Pokoj | 10,3 m² |
| 203-Pokoj | 12,7 m² |
| 204-Koupelna | 7,8 m² |
| 205-Ložnice | 12,4 m² |
| 206-Šatna | 4,9 m² |
| 207-Koupelna | 3,4 m² |
| 208-Prádelna | 2,9 m² |
Půdorys 1NP

| 101-Zádveří | 4,3 m² |
|---|---|
| 102-Technická místnost | 4,6 m² |
| 103-Koupelna | 2,9 m² |
| 104-Pracovna / pokoj pro hosty | 9,3 m² |
| 105-Obývací pokoj + KK | 50,6 m² |
| E01-Zahradní domek | 12,9 m² |
Půdorys 2NP

| 201-Chodba + schodiště | 14,8 m² |
|---|---|
| 202-Pokoj | 10,3 m² |
| 203-Pokoj | 12,7 m² |
| 204-Koupelna | 7,8 m² |
| 205-Ložnice | 12,4 m² |
| 206-Šatna | 4,9 m² |
| 207-Koupelna | 3,4 m² |
| 208-Prádelna | 2,9 m² |
Na východním okraji obce Hukovice, části Bartošovic, vzniká moderní soubor
čtyř samostatně stojících rodinných domů s kompletním zázemím – zahradními domky, krytými stáními, terasami, bazény
a zpevněnými plochami. Každý dům je pečlivě navržen tak, aby splňoval nároky
na komfortní bydlení čtyřčlenné rodiny, přičemž si projekt zachovává jednotný architektonický výraz, ale zároveň reaguje na individuální umístění v terénu.
Typový dům je řešen jako jednopodlažní objekt s obytným podkrovím, zastřešený klasickou sedlovou střechou. Stavba je nepodsklepená, kompaktní a přehledně uspořádaná – s důrazem na logické dispozice, dostatek přirozeného světla
a propojení interiéru s exteriérem.
Celková užitková plocha jednoho domu činí 141,4 m², zastavěná plocha pak
92,16 m².
Dispozice domu nabízí v přízemí otevřený obytný prostor s kuchyní, jídelnou
a obývacím pokojem, pokoj pro hosty či pracovnu, technickou místnost a koupelnu. V podkroví se nachází dva dětské pokoje, centrální koupelna, prádelna a ložnice
se šatnou a vlastní koupelnou. Každý dům má samostatný vchod z východu a je situován tak, aby na jižní a západní straně mohl vzniknout klidový prostor
se zahradou, terasou a bazénem.
Součástí každého domu je i zahradní domek s krytým stáním, zastřešený společnou plochou vegetační střechou. Díky promyšlenému půdorysu
a nadstandardnímu přesahu střechy vytváří praktické místo pro parkování, skladování
i posezení.
Technické řešení počítá s kvalitními materiály – nosné zdivo z pórobetonu, železobetonové stropy, zateplená fasáda
v kombinaci s omítkou a izolační trojskla
v plastových nebo hliníkových rámech. Všechny domy jsou napojeny na inženýrské sítě a mají vlastní přípojky, jejichž délka se liší v závislosti na poloze jednotlivých parcel.
Projekt je umístěn na čtyřech samostatných parcelách o rozloze 772–1044 m², s novým přístupem z účelové komunikace. Lokalita navazuje na okolní zástavbu a zároveň nabízí soukromí, prostor i potenciál
pro budoucí rozvoj.
Tento soubor čtyř typových domů představuje vyváženou kombinaci architektonické jednoduchosti, promyšleného uspořádání a praktického zázemí, která nabízí ideální podmínky pro klidný rodinný život v příjemném prostředí.
Na východním okraji obce Hukovice, části Bartošovic, vzniká moderní soubor
čtyř samostatně stojících rodinných domů s kompletním zázemím – zahradními domky, krytými stáními, terasami, bazény
a zpevněnými plochami. Každý dům je pečlivě navržen tak, aby splňoval nároky
na komfortní bydlení čtyřčlenné rodiny, přičemž si projekt zachovává jednotný architektonický výraz, ale zároveň reaguje na individuální umístění v terénu.
Typový dům je řešen jako jednopodlažní objekt s obytným podkrovím, zastřešený klasickou sedlovou střechou. Stavba je nepodsklepená, kompaktní a přehledně uspořádaná – s důrazem na logické dispozice, dostatek přirozeného světla
a propojení interiéru s exteriérem.
Celková užitková plocha jednoho domu činí 141,4 m², zastavěná plocha pak
92,16 m².
Dispozice domu nabízí v přízemí otevřený obytný prostor s kuchyní, jídelnou
a obývacím pokojem, pokoj pro hosty či pracovnu, technickou místnost a koupelnu. V podkroví se nachází dva dětské pokoje, centrální koupelna, prádelna a ložnice
se šatnou a vlastní koupelnou. Každý dům má samostatný vchod z východu a je situován tak, aby na jižní a západní straně mohl vzniknout klidový prostor
se zahradou, terasou a bazénem.
Součástí každého domu je i zahradní domek s krytým stáním, zastřešený společnou plochou vegetační střechou. Díky promyšlenému půdorysu
a nadstandardnímu přesahu střechy vytváří praktické místo pro parkování, skladování
i posezení.
Technické řešení počítá s kvalitními materiály – nosné zdivo z pórobetonu, železobetonové stropy, zateplená fasáda
v kombinaci s omítkou a izolační trojskla
v plastových nebo hliníkových rámech. Všechny domy jsou napojeny na inženýrské sítě a mají vlastní přípojky, jejichž délka se liší v závislosti na poloze jednotlivých parcel.
Projekt je umístěn na čtyřech samostatných parcelách o rozloze 772–1044 m², s novým přístupem z účelové komunikace. Lokalita navazuje na okolní zástavbu a zároveň nabízí soukromí, prostor i potenciál
pro budoucí rozvoj.
Tento soubor čtyř typových domů představuje vyváženou kombinaci architektonické jednoduchosti, promyšleného uspořádání a praktického zázemí, která nabízí ideální podmínky pro klidný rodinný život v příjemném prostředí.
Video průlet:













