PROJEKT NA MÍRU
Rodinný dům s obytným podkrovím a garáží – moderní bydlení ve Frýdku na prostorném pozemku s výhledem do zahrady
Velkorysé prostory pro velkou rodinu
| 🏡 Dispozice | 5+kk |
|---|---|
| 🎯 Energetický štítek | B |
| 📐 Užitná plocha | 253,1 m² |
| 📏 Zastavěná plocha | 243,1 m² |
| 🛠️ Projekt | 2024 |
| 📍 Lokalita | Frýdek Místek |
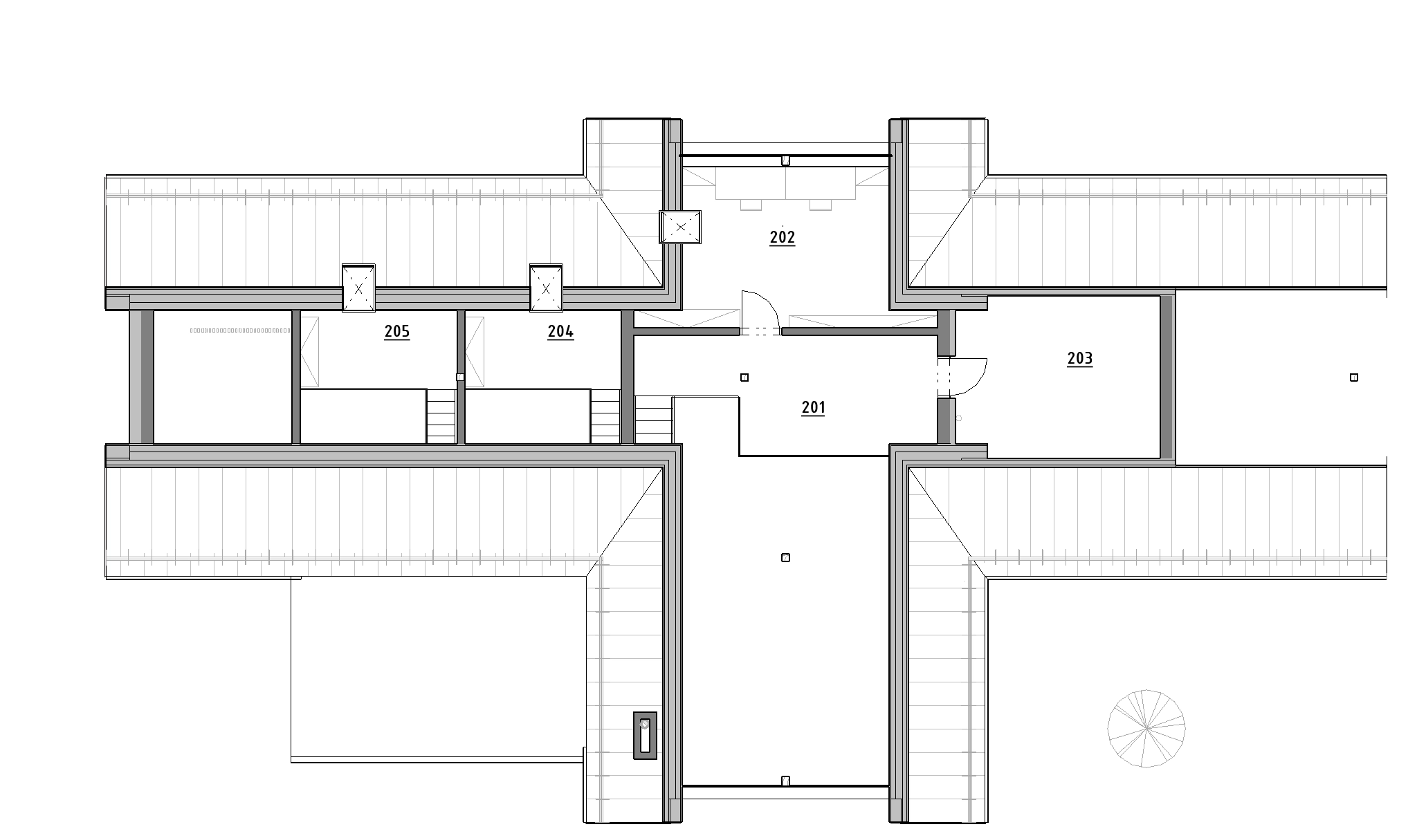
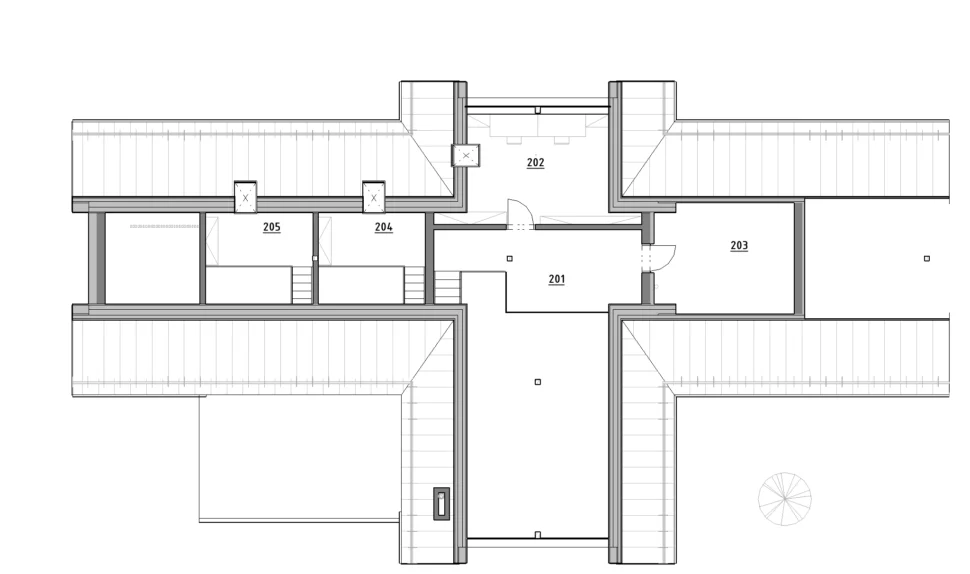
Půdorys 1NP

| 101-Zádveří | 4,6 m² |
|---|---|
| 102-Hala | 6,0 m² |
| 103-Technická místnost | 13 m² |
| 105-WC | 2,2 m² |
| 106-Spíž | 5,2 m² |
| 107-Obývací pokoj + KK | 46,7 m² |
| 108-Chodba | 7,8 m² |
| 109-Prádelna | 3,3 m² |
| 110-Koupelna | 5,5 m² |
| 111-Pokoj | 10,0 m² |
| 112-Koupelna | 3,8 m² |
| 113-Šatna | 6,5 m² |
| 114-Ložnice | 12,7 m² |
| 115-Pokoj | 9,9 m² |
| G01-Garáž | 28,3 m² |
Půdorys 1NP

| 101-Zádveří | 4,6 m² |
|---|---|
| 102-Hala | 6,0 m² |
| 103-Technická místnost | 13 m² |
| 105-WC | 2,2 m² |
| 106-Spíž | 5,2 m² |
| 107-Obývací pokoj + KK | 46,7 m² |
| 108-Chodba | 7,8 m² |
| 109-Prádelna | 3,3 m² |
| 110-Koupelna | 5,5 m² |
| 111-Pokoj | 10,0 m² |
| 112-Koupelna | 3,8 m² |
| 113-Šatna | 6,5 m² |
| 114-Ložnice | 12,7 m² |
| 115-Pokoj | 9,9 m² |
| G01-Garáž | 28,3 m² |
Na rozsáhlém pozemku o rozloze téměř 3000 m² v severní části města Frýdek-Místek vzniká architektonicky výrazná novostavba rodinného domu s křížovým půdorysem, sedlovou střechou a účelným dispozičním řešením. Objekt je navržen jako jednopodlažní dům s obytným podkrovím, který přirozeně propojuje společenskou, klidovou a technickou část do jedné kompaktní hmoty. Součástí stavby je také garáž a kryté stání plynule navazující na hlavní konstrukci domu.
Společenská zóna, orientovaná do zahrady, zahrnuje velkorysý otevřený prostor s kuchyňským koutem, jídelnou, obývacím pokojem a loftem, který zajišťuje přímý vizuální kontakt mezi podlažími a pocit vzdušnosti. Velkoformátová francouzská okna propojují interiér s terasou, která je částečně kryta protaženou pultovou střechou. V klidové části domu jsou navrženy dvě dětské ložnice, ložnice rodičů se šatnou, dvě koupelny a prádelna – vše přehledně uspořádané podél středové chodby. Každý z dětských pokojů je navíc propojen s vlastní „hernou“ v podkroví, čímž vzniká unikátní víceúrovňový prostor pro život dětí.
Technické zázemí domu, včetně samostatné místnosti s přístupem ze zádveří, navazuje přímo na integrovanou garáž. Provozní pohodlí doplňuje kryté stání, které je situováno východně od garáže pod výrazným přesahem střechy podepřeným sloupy.
V podkroví nad společenskou částí se nachází pracovna a skladovací prostor, přístupné ze vzdušného loftu. Celková užitná plocha domu činí 253 m², zastavěná plocha 243 m² a obestavěný prostor přes 1300 m³. Dům je navržen v konstrukčním systému z pórobetonových tvárnic s důsledným zateplením šedým polystyrenem, sedlová střecha je provedena s nadkrokevním zateplením a různými sklony pro jednotlivé části stavby (35° a 45°).
Tento moderní dům v sobě spojuje nadčasovou architekturu, praktické dispoziční řešení a vysoký komfort pro každodenní život čtyřčlenné rodiny. Ideální pro ty, kteří hledají velkorysé a funkční bydlení s možností propojení interiéru a exteriéru v klidné části Frýdku.
Na rozsáhlém pozemku o rozloze téměř 3000 m² v severní části města Frýdek-Místek vzniká architektonicky výrazná novostavba rodinného domu s křížovým půdorysem, sedlovou střechou a účelným dispozičním řešením. Objekt je navržen jako jednopodlažní dům s obytným podkrovím, který přirozeně propojuje společenskou, klidovou a technickou část do jedné kompaktní hmoty. Součástí stavby je také garáž a kryté stání plynule navazující na hlavní konstrukci domu.
Společenská zóna, orientovaná do zahrady, zahrnuje velkorysý otevřený prostor s kuchyňským koutem, jídelnou, obývacím pokojem a loftem, který zajišťuje přímý vizuální kontakt mezi podlažími a pocit vzdušnosti. Velkoformátová francouzská okna propojují interiér s terasou, která je částečně kryta protaženou pultovou střechou. V klidové části domu jsou navrženy dvě dětské ložnice, ložnice rodičů se šatnou, dvě koupelny a prádelna – vše přehledně uspořádané podél středové chodby. Každý z dětských pokojů je navíc propojen s vlastní „hernou“ v podkroví, čímž vzniká unikátní víceúrovňový prostor pro život dětí.
Technické zázemí domu, včetně samostatné místnosti s přístupem ze zádveří, navazuje přímo na integrovanou garáž. Provozní pohodlí doplňuje kryté stání, které je situováno východně od garáže pod výrazným přesahem střechy podepřeným sloupy.
V podkroví nad společenskou částí se nachází pracovna a skladovací prostor, přístupné ze vzdušného loftu. Celková užitná plocha domu činí 253 m², zastavěná plocha 243 m² a obestavěný prostor přes 1300 m³. Dům je navržen v konstrukčním systému z pórobetonových tvárnic s důsledným zateplením šedým polystyrenem, sedlová střecha je provedena s nadkrokevním zateplením a různými sklony pro jednotlivé části stavby (35° a 45°).
Tento moderní dům v sobě spojuje nadčasovou architekturu, praktické dispoziční řešení a vysoký komfort pro každodenní život čtyřčlenné rodiny. Ideální pro ty, kteří hledají velkorysé a funkční bydlení s možností propojení interiéru a exteriéru v klidné části Frýdku.
Video průlet:



















