PROJEKT NA MÍRU
Rodinný dům ve tvaru „L“ s viditelným krovem, krytou terasou a podkrovím
Klidné bydlení v srdci Beskyd
| 🏡 Dispozice | 5+kk |
|---|---|
| 🎯 Energetický štítek | A |
| 📐 Užitná plocha | 252,4 m² |
| 📏 Zastavěná plocha | 161,6 m² |
| 🛠️ Projekt | 2025 |
| 📍 Lokalita | Čeladná |
Půdorys 1NP

| 101-Zádveří | 7,6 m² |
|---|---|
| 102-WC | 2,1 m² |
| 103-Technická místnost | 11,4 m² |
| 104-Garáž | 34,9 m² |
| 105-Obývací pokoj + jídelna | 63,8 m² |
| 106-Spíž | 7,1 m² |
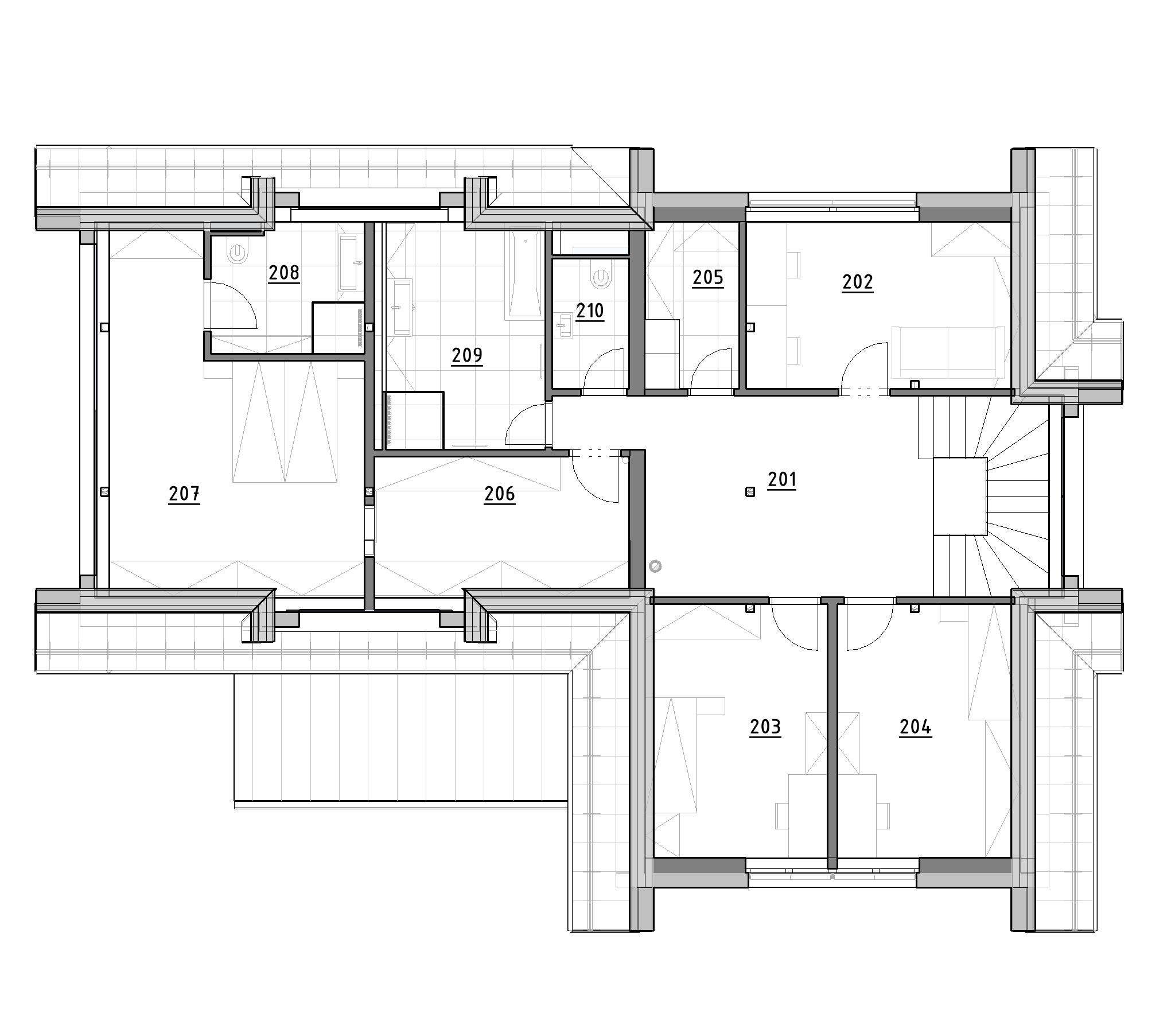
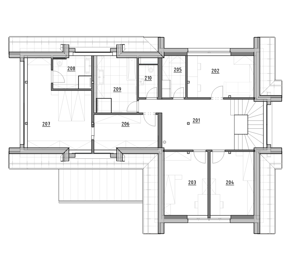
Půdorys 2NP

| 201-Hala + galerie | 24,3 m² |
|---|---|
| 202-Pracovna | 13,6 m² |
| 203-Pokoj | 13,8 m² |
| 204-Pokoj | 13,8 m² |
| 205-Prádelna | 4,7 m² |
| 206-Šatna | 10,7 m² |
| 207-Ložnice | 21,9 m² |
| 208-Koupelna | 5,8 m² |
| 209-Koupelna | 11,6 m² |
| 210-WC | 3,0 m² |
Půdorys 1NP

| 101-Zádveří | 7,6 m² |
|---|---|
| 102-WC | 2,1 m² |
| 103-Technická místnost | 11,4 m² |
| 104-Garáž | 34,9 m² |
| 105-Obývací pokoj + jídelna | 63,8 m² |
| 106-Spíž | 7,1 m² |
Půdorys 2NP

| 201-Hala + galerie | 24,3 m² |
|---|---|
| 202-Pracovna | 13,6 m² |
| 203-Pokoj | 13,8 m² |
| 204-Pokoj | 13,8 m² |
| 205-Prádelna | 4,7 m² |
| 206-Šatna | 10,7 m² |
| 207-Ložnice | 21,9 m² |
| 208-Koupelna | 5,8 m² |
| 209-Koupelna | 11,6 m² |
| 210-WC | 3,0 m² |
Na slunném pozemku o výměře 1500 m²
v prestižní lokalitě Čeladná vzniká novostavba rodinného domu, která spojuje tradiční formu se současným pojetím interiéru a komfortu. Jednopodlažní dům s obytným podkrovím a krytým stáním
pro automobil nabízí elegantní architekturu, přírodní materiály
a dispozičně promyšlené rozvržení
pro čtyřčlennou rodinu.
Půdorysně tvar „L“ umožňuje přirozené oddělení technického zázemí, společenské části v přízemí a klidové zóny umístěné v podkroví. Hlavní vstup
je orientován z východu a vede do zádveří, odkud je přístupná technická místnost, garáž a samostatné WC. Dominantou přízemí je vzdušný obytný prostor
s krbem, jídelním koutem, kuchyní se spíží a velkým portálovým prosklením,
které otevírá dům směrem na západní terasu, částečně krytou pultovou střechou.
Ze společenské části vede schodiště
do obytného podkroví, které nabízí
2 dětské pokoje, ložnici se soukromou koupelnou a šatnou, pracovnu, prádelnu, samostatné WC a druhou koupelnu
pro děti. Podkroví je navrženo jako otevřený prostor až po spodní líc střechy, s viditelným dřevěným krovem
a přirozeným prosvětlením díky skleněným štítům a sedlovým vikýřům.
Zastřešení objektu tvoří klasický sedlový krov s keramickou taškou, navržený
s nadkrokevní izolací PIR deskami. Kvalitní stavební materiály, jako jsou pórobetonové tvárnice, železobetonové stropy, zateplení EPS 240 mm a skleněné výplně vikýřů, zajišťují energetickou úspornost a dlouhou životnost stavby.
S užitnou plochou 252,4 m², z toho obytných 114 m², zastavěnou plochou 161,6 m² a obestavěným prostorem
přes 1100 m³, dům nabízí velkorysé bydlení s důrazem na přirozené světlo, otevřenost a kontakt s okolní přírodou.
Tento projekt je ideální pro ty, kteří hledají nadčasové bydlení v podhůří Beskyd,
bez kompromisů v pohodlí, soukromí
ani estetice.
Na slunném pozemku o výměře 1500 m² v prestižní lokalitě Čeladná vzniká novostavba rodinného domu, která spojuje tradiční formu se současným pojetím interiéru a komfortu. Jednopodlažní dům s obytným podkrovím a krytým stáním pro automobil nabízí elegantní architekturu, přírodní materiály a dispozičně promyšlené rozvržení pro čtyřčlennou rodinu.
Půdorysně tvar „L“ umožňuje přirozené oddělení technického zázemí, společenské části v přízemí
a klidové zóny umístěné v podkroví. Hlavní vstup je orientován z východu a vede do zádveří, odkud je přístupná technická místnost, garáž a samostatné WC. Dominantou přízemí je vzdušný obytný prostor
s krbem, jídelním koutem, kuchyní se spíží a velkým portálovým prosklením, které otevírá dům směrem na západní terasu, částečně krytou pultovou střechou.
Ze společenské části vede schodiště do obytného podkroví, které nabízí 2 dětské pokoje, ložnici se soukromou koupelnou a šatnou, pracovnu, prádelnu, samostatné WC a druhou koupelnu pro děti. Podkroví je navrženo jako otevřený prostor až po spodní líc střechy, s viditelným dřevěným krovem a přirozeným prosvětlením díky skleněným štítům a sedlovým vikýřům.
Zastřešení objektu tvoří klasický sedlový krov s keramickou taškou, navržený s nadkrokevní izolací
PIR deskami. Kvalitní stavební materiály, jako jsou pórobetonové tvárnice, železobetonové stropy, zateplení EPS 240 mm a skleněné výplně vikýřů, zajišťují energetickou úspornost a dlouhou životnost stavby.
S užitnou plochou 252,4 m², z toho obytných 114 m², zastavěnou plochou 161,6 m² a obestavěným prostorem přes 1100 m³, dům nabízí velkorysé bydlení s důrazem na přirozené světlo, otevřenost
a kontakt s okolní přírodou.
Tento projekt je ideální pro ty, kteří hledají nadčasové bydlení v podhůří Beskyd, bez kompromisů
v pohodlí, soukromí ani estetice.
Video průlet:

















